105 15041 Prospect Ave, White Rock, BC, MLS® R3042463

$649,900
Est. Mortgage /mo

$649,900
Est. Mortgage /mo
Dan Marusin
Dan Marusin
Renanza Realty
778-918-5990
Award-Winning REALTOR® with 11+ Years of Experience Serving Greater Vancouver
Go See This Home Now
2 Beds
2 Baths
1 Stories
$ 741.24 Maint. Fee
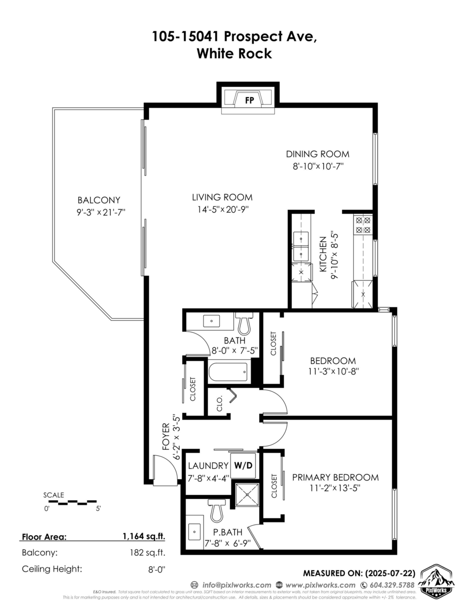
1164 sqft
1975 built
Show more info
Photos
Map
Street view
Schools
Crime
Commute
Shop & Eat

105 15041 Prospect Ave, White Rock, BC | MLS® R3042463 Property Details

Stunning Ocean View Condo at Sea Vista! Perched on White Rock’s coveted Prospect Avenue, this boutique building offers incredible ocean views. Renovated in 2025, this immaculate 2 bed, 2 bath corner unit features 1,164 sqft of bright, modern living with only one shared wall for added privacy and natural light. All new kitchens and bathrooms, and a cozy gas fireplace (gas included in fees). The 182 sq ft south-facing balcony is perfect for entertaining. Well managed building with many updates! Exterior project just completed: new glass railings, vinyl decking, fascia, and fresh paint - are fully paid by the seller. Fully rainscreened. In-suite laundry, 1 parking, free street parking, and 1 storage included. Rentals allowed (no short-term). No pets/smoking. The perfect White Rock location!

General Info

Price $649,900
Total Bedrooms 2
Total Bathrooms 2
Half Bathrooms 0
Floor Area Total (sqft) 1164
Lot Size -
Lot Size Depth Feet
Lot Size Frontage -
Basement None
Basement Features BasementFeatures

Property Metrics

Year Built 1975
Age Of Building 50
Building Type Apartment/Condo
Property Type Residential
Stories 1
Appliances Included Washer/Dryer, Dishwasher, Refrigerator, Stove, Microwave
Building Amenities Recreation Facilities, Sauna/Steam Room, Trash, Maintenance Grounds, Gas, Management, Sewer, Snow Removal, Water
Building Features BuildingFeatures
Structures Multi Family, Residential Attached

Additional Details

MLS® # R3042463
Area South Surrey White Rock
Neighbourhood White Rock
City White Rock
Gross Taxes $2,661.87
Ownership Type Freehold Strata
Maintenance Fee $741.24
Community Features Shopping Nearby
Amenities Nearby Recreation Facilities, Sauna/Steam Room, Trash, Maintenance Grounds, Gas, Management, Sewer, Snow Removal, Water

Heating & Cooling

Fireplace 1
Heating Type Electric, Natural Gas

Utilities

Utility Type Electricity Connected, Natural Gas Connected, Water Connected
Utility Sewer Community, Sanitary Sewer, Storm Sewer
Water (WaterSource) Public

Parking

Parking Type Underground, Front Access, Garage Door Opener
Total Parking Spaces 1

🔒 Join or Sign In • Real estate boards need a verified account to see Property data

Strata Restrictions Pets Not Allowed,Rentals Allwd w/Restrctns,Smoking Restrictions
Pet Restrictions No Cats, No Dogs, No
Rental Restrictions 100
Zoning RM-2
Rental Suites None
Laundry In Unit
# of Kitchens 1
Flooring Hardwood, Tile, Wall/Wall/Mixed
Foundation Concrete Perimeter
Interior Features Elevator, Storage
Locker 1
View 1
View Description Ocean view
Units In Development 15
Exterior Features Balcony
Sewer Community, Sanitary Sewer, Storm Sewer
Roof Asphalt, Torch-On

Property History

🔒 Join or Sign In • Real estate boards need a verified account to see Property data

Status Date Price
Show more

Listed by: Engel & Volkers Vancouver (Branch) & Engel & Volkers Vancouver (Branch) & Engel & Volkers Vancouver (Branch)

NOTE: This representation is based in whole or in part on data generated by the Chilliwack & District Real Estate Board, Fraser Valley Real Estate Board or Greater Vancouver REALTORS® which assumes no responsibility for its accuracy.

Neighborhood Info

Public Schools

Elementary
White Rock Elementary School
Average
0.43 km
5.5/10
Secondary
Semiahmoo Secondary School
1.23 km

Information includes BC Government Open License data; school details change often and are offered solely as general guidance.

Private Schools

Elementary, Secondary
Eaton Arrowsmith School White Rock
0.63 km
Elementary, Secondary
Eaton Arrowsmith School White Rock
0.63 km

Closest Transit

Bus Stop
Westbound Buena Vista Ave @ Blackwood St
0.15 km
Skytrain
Skytrain @ Clayton Station ( Under Construction till 2029)
13.34 km

Noise/ Power Lines

Road/Hwy Noise
Possible
Railway/Sky train Noise
Unlikely
Airport/Port Noise
Unlikely
Close to major Power Lines
Unlikely

Other

Agricultural Land Reserve (ALR)
Unlikely
Flood Area
Unlikely
Close to Cemeteries
Unlikely

Welcome to 105 15041 Prospect Avenue, a stunning residence located in the heart of White Rock, BC. As we step into this charming community, let's explore the schools, crime statistics, demographics, transit, and lifestyle amenities that make this neighborhood so desirable.

### Schools

Just a short stroll from our property, you'll find White Rock Elementary School, rated 5.5/10. This highly-rated school is conveniently located 0.43 km from 105 15041 Prospect Avenue, making it an ideal choice for families. Semiahmoo Secondary School, another excellent option, is just 1.23 km away, with a rating of No Rating. For families looking for an independent school, Eaton Arrowsmith School White Rock is nearby, with a rating of No Rating, located 0.63 km from this home.

### Crime Statistics

According to the latest crime data from Statistics Canada (2020), this neighborhood has an above-average crime rate of 8,651.18, with 1,810 disturbances reported. While the crime rate is higher than average, it's essential to note that it's still a relatively safe area. The drug crime rate is above average, with a rating of 320.24, and the property crime rate is also above average, with a rating of 3,962.34. However, it's reassuring to see that the violent crime rate is average, with 321 incidents reported in 2020.

### Demographics

This charming community is home to a diverse population, with 24.1% of residents holding a university certificate or degree, which is above average in BC. On the other hand, 12.8% of the population has no certificate or degree, which is below average. The median household income is $48,192, which is lower than the BC average. However, the median personal income is $34,629, which is average. The unemployment rate is 7.1%, which is below average. Population growth between 2011 and 2016 was 1.8%, which is average for this region.

### Transit

Convenience is key when it comes to transportation, and 105 15041 Prospect Avenue is no exception. The closest bus station, Westbound Buena Vista Ave @ Blackwood St, is just 0.15 km away. With easy access to public transportation, you'll be connected to the rest of White Rock and beyond.

### Lifestyle Amenities

This neighborhood is a haven for outdoor enthusiasts, with plenty of parks, beaches, and trails to explore. You'll also find a range of shopping malls, grocery stores, restaurants, and coffee shops nearby. For healthcare needs, nearby hospitals and medical facilities provide top-notch care.

### Real Estate Context

The average dwelling value in this neighborhood is $422,524, which is above average for British Columbia. Average owner payments are below average, with owners spending $925 per month on average. Tenants pay $1,063 per month, which is average. 32.8% of the population are renters, which is above average for BC.

### Insider Insights

As a local realtor with over a decade of experience, I can confidently say that 105 15041 Prospect Avenue is a hidden gem in the heart of White Rock. With its excellent schools, above-average crime statistics, and convenient transit options, this neighborhood has something for everyone. Whether you're a family looking for a safe and supportive community or a retiree seeking a relaxed and peaceful lifestyle, this property is sure to impress.

### MLS® R3042463

Don't miss out on this incredible opportunity to own a piece of White Rock's charm. Contact me today to schedule a viewing and make 105 15041 Prospect Avenue your home sweet home.

Local Info

Calculate your monthly mortgage payments

/month
Principal & Interest
Property Taxes $202
Maintenance fee 0
All figures are informational estimates by Estateblock.com; actual mortgage payments and insurance rates vary by many factors.

Cash Flow Analysis

/month
Mortgage Payment $3201
Monthly Payment $3802
Break Even Down Payment 0%
All figures are informational estimates by Estateblock.com; actual mortgage payments and insurance rates vary by many factors.

Price Evaluation Chart

Filter
Beds Home Types Square Feet Lot Size Year Built
This Home $649,900
White Rock $510,990
White Rock $510,990
Data is based on list prices of similar active listings. This representation is based in whole or in part on data generated by the Chilliwack & District Real Estate Board, Fraser Valley Real Estate Board or Real Estate Board of Greater Vancouver which assumes no responsibility for its accuracy

Listing Price Comparision

This house $1,400,000
Surrey

No comparables

Fleetwood Tynehead $1,399,000 -6.38%
Data is based on list prices of similar active listings. This representation is based in whole or in part on data generated by the Chilliwack & District Real Estate Board, Fraser Valley Real Estate Board or Real Estate Board of Greater Vancouver which assumes no responsibility for its accuracy
Dan Marusin
Dan Marusin
Renanza Realty
778-918-5990
Award-Winning REALTOR® with 11+ Years of Experience Serving Greater Vancouver

Earn Cashback

Potential Cashback for this listing if you buy with us

$0
out of $4,762
0 of 17 missions
(0.0% out of 100%)

Login to track your cashback progress

Sign up on Estateblock.com

$238 / 5.00%

Use the “Hot Deal” module on our website

$95 / 2.00%

Sign up for our Newsletter

$95 / 2.00%

Create a saved search on Estateblock.com

$143 / 3.00%

Book a Property Showing with us

$238 / 5.00%

Get a mortgage through one of our recommended brokers

$476 / 10.00%

Use our recommended insurance provider

$143 / 3.00%

Use our recommended notary for closing

$143 / 3.00%

Sign an Exclusive Buyer’s Agency Agreement with us

$476 / 10.00%

Share Estateblock.com on social media with a short intro

$143 / 3.00%

Refer a friend who successfully buys or sells with us

$952 / 20.00%

Sell your home with us

$952 / 20.00%

Leave a Public Review in Google

$238 / 5.00%

Follow us on Insta or FB and tag us in a post

$95 / 2.00%

Create a short video testimonial

$95 / 2.00%

Leave a Facebook review

$95 / 2.00%

Talk with one of our mortgage brokers

$143 / 3.00%

Similar nearby listings

206 15010 Roper Avenue, White Rock, BC
$449,900

206 15010 Roper Avenue, White Rock, BC

2 Beds
2 Baths
990 sqft
1974 built
MLS® R3062414 , Stonehaus Realty Corp.
3 1870 E Southmere Crescent, Surrey, BC
$399,999

3 1870 E Southmere Crescent, Surrey, BC

2 Beds
1 Baths
908 sqft
1981 built
MLS® R3071060 , Keller Williams Ocean Realty & Keller Williams Ocean Realty
302 1390 Merklin Street, White Rock, BC
$539,000

302 1390 Merklin Street, White Rock, BC

2 Beds
1 Baths
1034 sqft
1973 built
MLS® R3011207 , RE/MAX Crest Realty & RE/MAX Crest Realty
405 1480 Foster Street, White Rock, BC
$675,000

405 1480 Foster Street, White Rock, BC

2 Beds
2 Baths
1054 sqft
1977 built
MLS® R3055485 , RE/MAX Colonial Pacific Realty
104 1850 E Southmere Crescent, Surrey, BC
$385,000

104 1850 E Southmere Crescent, Surrey, BC

1 Beds
1 Baths
623 sqft
1982 built
MLS® R3053941 , eXp Realty & eXp Realty
315 1850 Southmere Crescent, Surrey, BC
$369,900

315 1850 Southmere Crescent, Surrey, BC

1 Beds
1 Baths
624 sqft
1982 built
MLS® R3068267 , RE/MAX Colonial Pacific Realty & RE/MAX Colonial Pacific Realty
302 1442 Blackwood Street, White Rock, BC
$315,000

302 1442 Blackwood Street, White Rock, BC

1 Beds
1 Baths
624 sqft
1974 built
MLS® R3049564 , Sutton Group-West Coast Realty
206 2239 152 Street, Surrey, BC
$469,000

206 2239 152 Street, Surrey, BC

2 Beds
1 Baths
809 sqft
1990 built
MLS® R3027709 , RE/MAX Performance Realty & RE/MAX Performance Realty
110 1850 E Southmere Crescent, Surrey, BC
$349,000

110 1850 E Southmere Crescent, Surrey, BC

1 Beds
1 Baths
669 sqft
1981 built
MLS® R3071416 , Real Broker B.C. Ltd. & Real Broker B.C. Ltd.
304 1360 Martin Street, White Rock, BC
$399,900

304 1360 Martin Street, White Rock, BC

2 Beds
2 Baths
1063 sqft
1973 built
MLS® R3064709 , Stonehaus Realty Corp. & Stonehaus Realty Corp.

Similar Sold listings

🔒 Join or Sign In • Real estate boards need a verified account to see photos & sold data

104 1255 Best Street, White Rock, BC
Sold
$568,000

104 1255 Best Street, White Rock, BC

2 Beds
2 Baths
1142 sqft
1989 built
MLS® R2830705 , RE/MAX Austin Kay Realty
303 1526 George Street, White Rock, BC
Sold
$519,900

303 1526 George Street, White Rock, BC

2 Beds
2 Baths
898 sqft
1979 built
MLS® R2869979 , Macdonald Realty (Surrey/152)
203 1850 E Southmere Crescent, Surrey, BC
Sold
$398,900

203 1850 E Southmere Crescent, Surrey, BC

1 Beds
1 Baths
678 sqft
1981 built
MLS® R2943909 , Stonehaus Realty Corp.
406 1220 Fir Street, White Rock, BC
Sold
$575,000

406 1220 Fir Street, White Rock, BC

2 Beds
2 Baths
1070 sqft
1987 built
MLS® R3025464 , RE/MAX Colonial Pacific Realty & RE/MAX Colonial Pacific Realty
145 1653 140 Street, Surrey, BC
Sold
$125,000

145 1653 140 Street, Surrey, BC

1 Beds
1 Baths
484 sqft
1990 built
MLS® R2894936 , Macdonald Realty & Macdonald Realty
306 1234 Merklin Street, White Rock, BC
Sold
$749,000

306 1234 Merklin Street, White Rock, BC

2 Beds
2 Baths
1353 sqft
1990 built
MLS® R2919908 , Team 3000 Realty Ltd.
109 1850 E Southmere Crescent, Surrey, BC
Sold
$399,000

109 1850 E Southmere Crescent, Surrey, BC

1 Beds
1 Baths
645 sqft
1981 built
MLS® R2948866 , eXp Realty of Canada Inc. & eXp Realty of Canada Inc.
301 1521 Blackwood Street, White Rock, BC
Sold
$505,000

301 1521 Blackwood Street, White Rock, BC

2 Beds
2 Baths
1131 sqft
1981 built
MLS® R2926887 , Royal LePage Northstar Realty (S. Surrey)
401 15010 Roper Avenue, White Rock, BC
Sold
$499,000

401 15010 Roper Avenue, White Rock, BC

2 Beds
1 Baths
888 sqft
1974 built
MLS® R2819556 , Rennie & Associates Realty Ltd.
102 1351 Martin Street, White Rock, BC
Sold
$598,900

102 1351 Martin Street, White Rock, BC

2 Beds
1 Baths
972 sqft
1976 built
MLS® R2921528 , Royal LePage Little Oak Realty

Book a tour

Please complete the form. We will the arrangements and give you a call, typically within 1-2 hours. Or Call Us 778-918-5990
Thank you Your message has been sent
Go See This Home Now