105 15041 Prospect Ave, White Rock, BC, MLS® R3082234

$629,900
Est. Mortgage /mo

$629,900
Est. Mortgage /mo
Dan Marusin
Dan Marusin
Renanza Realty
778-918-5990
Award-Winning REALTOR® with 11+ Years of Experience Serving Greater Vancouver
Go See This Home Now
2 Beds
2 Baths
1 Stories
$ 778.31 Maint. Fee
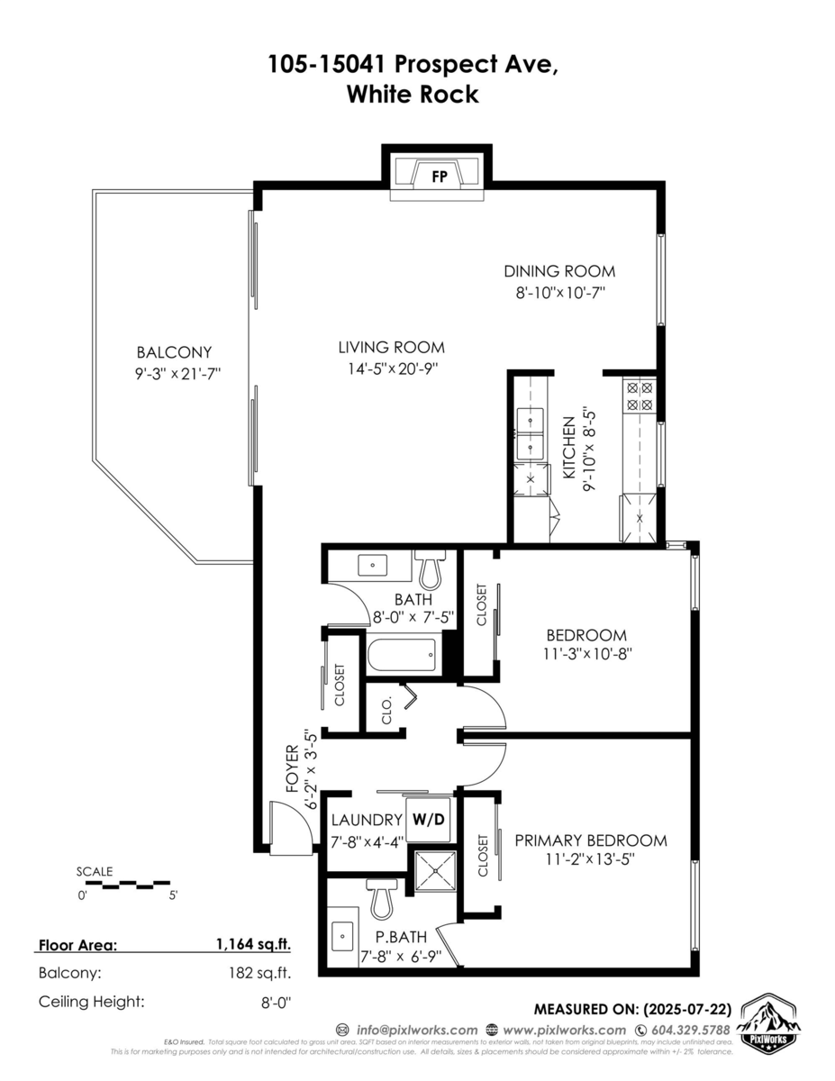
1164 sqft
1975 built
Show more info
Photos
Map
Street view
Schools
Crime
Commute
Shop & Eat

105 15041 Prospect Ave, White Rock, BC | MLS® R3082234 Property Details

Stunning Ocean View Condo at Sea Vista! Perched on White Rock’s coveted Prospect Avenue, this boutique building offers ocean views. Renovated in 2025, this immaculate 2 bed, 2 bath corner unit features 1,164 sqft of bright, modern living with only one shared wall for added privacy and natural light. All new kitchens and bathrooms, and a cozy gas fireplace (gas included in fees). The 182 sq ft south-facing balcony is perfect for entertaining. Well managed building with many updates! Exterior project just completed: new glass railings, vinyl decking, fascia, and fresh paint - are fully paid by the seller. Fully rainscreened. In-suite laundry, 1 parking, free street parking, and 1 storage included. Rentals allowed (no short-term). No pets/smoking.

General Info

Price $629,900
Total Bedrooms 2
Total Bathrooms 2
Half Bathrooms 0
Floor Area Total (sqft) 1164
Lot Size -
Lot Size Depth Feet
Lot Size Frontage -
Basement None
Basement Features BasementFeatures

Property Metrics

Year Built 1975
Age Of Building 51
Building Type Apartment/Condo
Property Type Residential
Stories 1
Appliances Included Washer/Dryer, Dishwasher, Refrigerator, Stove, Microwave
Building Amenities Recreation Facilities, Sauna/Steam Room, Trash, Maintenance Grounds, Gas, Management, Sewer, Snow Removal, Water
Building Features BuildingFeatures
Structures Multi Family, Residential Attached

Additional Details

MLS® # R3082234
Area South Surrey White Rock
Neighbourhood White Rock
City White Rock
Gross Taxes $2,661.87
Ownership Type Freehold Strata
Maintenance Fee $778.31
Community Features Shopping Nearby
Amenities Nearby Recreation Facilities, Sauna/Steam Room, Trash, Maintenance Grounds, Gas, Management, Sewer, Snow Removal, Water

Heating & Cooling

Fireplace 1
Heating Type Electric, Natural Gas

Utilities

Utility Type Electricity Connected, Natural Gas Connected, Water Connected
Utility Sewer Community, Sanitary Sewer, Storm Sewer
Water (WaterSource) Public

Parking

Parking Type Underground, Front Access, Garage Door Opener
Total Parking Spaces 1

🔒 Join or Sign In • Real estate boards need a verified account to see Property data

Strata Restrictions Pets Not Allowed,Rentals Allwd w/Restrctns,Smoking Restrictions
Pet Restrictions No Cats, No Dogs, No
Rental Restrictions 100
Zoning RM-2
Rental Suites None
Laundry In Unit
# of Kitchens 1
Flooring Hardwood, Tile, Wall/Wall/Mixed
Foundation Concrete Perimeter
Interior Features Elevator, Storage
Locker 1
View 1
View Description Ocean view
Units In Development 15
Exterior Features Balcony
Sewer Community, Sanitary Sewer, Storm Sewer
Roof Asphalt, Torch-On

Property History

🔒 Join or Sign In • Real estate boards need a verified account to see Property data

Status Date Price
Show more

Listed by: Engel & Volkers Vancouver (Branch) & Engel & Volkers Vancouver (Branch)

NOTE: This representation is based in whole or in part on data generated by the Chilliwack & District Real Estate Board, Fraser Valley Real Estate Board or Greater Vancouver REALTORS® which assumes no responsibility for its accuracy.

Neighborhood Info

Public Schools

Elementary
White Rock Elementary School
Average
0.43 km
5.5/10
Secondary
Semiahmoo Secondary School
1.23 km

Information includes BC Government Open License data; school details change often and are offered solely as general guidance.

Private Schools

Elementary, Secondary
Eaton Arrowsmith School White Rock
0.63 km
Elementary, Secondary
Eaton Arrowsmith School White Rock
0.63 km

Closest Transit

Bus Stop
Westbound Buena Vista Ave @ Blackwood St
0.15 km
Skytrain
Skytrain @ Clayton Station ( Under Construction till 2029)
13.34 km

Noise/ Power Lines

Road/Hwy Noise
Possible
Railway/Sky train Noise
Unlikely
Airport/Port Noise
Unlikely
Close to major Power Lines
Unlikely

Other

Agricultural Land Reserve (ALR)
Unlikely
Flood Area
Unlikely
Close to Cemeteries
Unlikely

Welcome to 105 15041 Prospect Avenue, a beautiful property in White Rock, BC, listed as MLS® R3082234. As your trusted realtor, I'm excited to show you around and highlight the fantastic features of this community.

Let's start with the schools. White Rock Elementary School, rated 5.5/10, is a short 0.43 km walk from your new home. This school is a great choice for families, and I've heard from many parents that the teachers and staff are dedicated to providing a nurturing environment for their students. Just down the road, you'll also find Semiahmoo Secondary School, rated No Rating, which is a great option for older students.

If you're looking for a private school option, Eaton Arrowsmith School White Rock is a fantastic choice, located just 0.63 km from your home. This school has a No Rating, but it's known for its unique approach to learning and its small class sizes.

Now, let's talk about safety. According to the latest crime statistics from Statistics Canada (2020), there were 1,810 disturbances in the area, with an overall crime rate of 8,651.18 incidents per 100,000 population. While this is above average compared to other Canadian cities, it's essential to note that crime rates can fluctuate over time. In this case, the rate has increased by 8.65% year over year.

In terms of property crimes, the rating is above average, with 3,962.34 incidents in 2020. However, it's worth noting that this rate has decreased by 4.95% year over year. Violent crime rates are also a concern, with 321 incidents in 2020. While this is above average compared to other BC municipalities, it's essential to keep in mind that crime rates can vary depending on the specific location.

Now, let's talk about transportation. The closest bus station is Westbound Buena Vista Ave @ Blackwood St, just 0.15 km away from your home. This makes it easy to get around White Rock without a car.

Demographically, this neighborhood is diverse, with 24.1% of residents holding a university certificate or degree, which is above average compared to other BC neighborhoods. However, 12.8% of the population has no certificate or degree, which is below average. The median household income is $48,192, which is low compared to the British Columbia average. The median personal income is $34,629, which is average. A significant proportion of households (41.1%) have a mortgage, which is low compared to other areas.

In terms of employment, the unemployment rate in this area is 7.1%, which is below average compared to other Canadian cities. The population change between 2011 and 2016 was 1.8%, which is average compared to the region's growth rate.

The population density in this area is high, with 8,000.4 people per square kilometer. The average family size is 2.2, which is low compared to the region. The percentage of families with children is 25.9%, which is also low. The average age of the population is 60.2, which is high compared to other BC cities.

In terms of real estate, the average value of dwellings in this neighborhood is $422,524, which is above average compared to other areas in British Columbia. The average owner payments are below average, with owners spending an average of $925 per month. Tenants are paying an average of $1,063 per month, which is average compared to other cities.

Finally, 32.8% of the population in this area are renters, which is above average compared to other BC cities and areas. The percentage of English and French speakers is 6.1%, which is below average. However, 93% of residents speak only English, which is above average.

As for transportation, 75.6% of residents use cars, which is below average. 7.6% of residents use public transport, which is average. 0.8% of residents use bicycles, which is below average. 15.6% of residents walk, which is high.

Overall, 105 15041 Prospect Avenue is a fantastic property in a vibrant community. With its proximity to excellent schools, transportation options, and amenities, this home offers the perfect blend of convenience and lifestyle. As your trusted realtor, I'd be happy to answer any questions you may have and help you make this home yours.

MLS® R3082234, 105 15041 Prospect Avenue, White Rock, BC – Come and explore this amazing property today!

Local Info

Calculate your monthly mortgage payments

/month
Principal & Interest
Property Taxes $202
Maintenance fee 0
All figures are informational estimates by Estateblock.com; actual mortgage payments and insurance rates vary by many factors.

Cash Flow Analysis

/month
Mortgage Payment $3201
Monthly Payment $3802
Break Even Down Payment 0%
All figures are informational estimates by Estateblock.com; actual mortgage payments and insurance rates vary by many factors.

Price Evaluation Chart

Filter
Beds Home Types Square Feet Lot Size Year Built
This Home $629,900
White Rock $530,155
White Rock $530,155
Data is based on list prices of similar active listings. This representation is based in whole or in part on data generated by the Chilliwack & District Real Estate Board, Fraser Valley Real Estate Board or Real Estate Board of Greater Vancouver which assumes no responsibility for its accuracy

Listing Price Comparision

This house $1,400,000
Surrey

No comparables

Fleetwood Tynehead $1,399,000 -6.38%
Data is based on list prices of similar active listings. This representation is based in whole or in part on data generated by the Chilliwack & District Real Estate Board, Fraser Valley Real Estate Board or Real Estate Board of Greater Vancouver which assumes no responsibility for its accuracy
Dan Marusin
Dan Marusin
Renanza Realty
778-918-5990
Award-Winning REALTOR® with 11+ Years of Experience Serving Greater Vancouver

Earn Cashback

Potential Cashback for this listing if you buy with us

$0
out of $4,647
0 of 17 missions
(0.0% out of 100%)

Login to track your cashback progress

Sign up on Estateblock.com

$232 / 5.00%

Use the “Hot Deal” module on our website

$93 / 2.00%

Sign up for our Newsletter

$93 / 2.00%

Create a saved search on Estateblock.com

$139 / 3.00%

Book a Property Showing with us

$232 / 5.00%

Get a mortgage through one of our recommended brokers

$465 / 10.00%

Use our recommended insurance provider

$139 / 3.00%

Use our recommended notary for closing

$139 / 3.00%

Sign an Exclusive Buyer’s Agency Agreement with us

$465 / 10.00%

Share Estateblock.com on social media with a short intro

$139 / 3.00%

Refer a friend who successfully buys or sells with us

$929 / 20.00%

Sell your home with us

$929 / 20.00%

Leave a Public Review in Google

$232 / 5.00%

Follow us on Insta or FB and tag us in a post

$93 / 2.00%

Create a short video testimonial

$93 / 2.00%

Leave a Facebook review

$93 / 2.00%

Talk with one of our mortgage brokers

$139 / 3.00%

Similar nearby listings

304 1480 Foster Street, Surrey, BC
Open House
$499,000

304 1480 Foster Street, Surrey, BC

1 Beds
1 Baths
839 sqft
1977 built
MLS® R3083198 , Nu Stream Realty Inc.
1 1860 E Southmere Crescent, Surrey, BC
$347,999

1 1860 E Southmere Crescent, Surrey, BC

1 Beds
1 Baths
612 sqft
1981 built
MLS® R3075286 , Stonehaus Realty Corp.
101 15041 Prospect Avenue, White Rock, BC
$769,900

101 15041 Prospect Avenue, White Rock, BC

2 Beds
2 Baths
1178 sqft
1975 built
MLS® R3082158 , Engel & Volkers Vancouver (Branch) & Engel & Volkers Vancouver (Branch)
219 1760 Southmere Crescent, Surrey, BC
$492,000

219 1760 Southmere Crescent, Surrey, BC

2 Beds
2 Baths
1053 sqft
1980 built
MLS® R3055406 , RE/MAX Westcoast
107 1555 Fir Street, White Rock, BC
$338,000

107 1555 Fir Street, White Rock, BC

1 Beds
1 Baths
885 sqft
1973 built
MLS® R3076257 , Homelife Benchmark Realty Corp.
206 15010 Roper Avenue, White Rock, BC
$449,900

206 15010 Roper Avenue, White Rock, BC

2 Beds
2 Baths
990 sqft
1974 built
MLS® R3062414 , Stonehaus Realty Corp.
715 1350 Vidal Street, White Rock, BC
$550,000

715 1350 Vidal Street, White Rock, BC

2 Beds
2 Baths
1271 sqft
1984 built
MLS® R3066170 , RE/MAX Treeland Realty & RE/MAX Treeland Realty
502 15111 Russell Avenue, White Rock, BC
$550,000

502 15111 Russell Avenue, White Rock, BC

1 Beds
1 Baths
778 sqft
1988 built
MLS® R3049810 , Macdonald Realty
111 1341 George Street, White Rock, BC
$424,000

111 1341 George Street, White Rock, BC

1 Beds
1 Baths
826 sqft
1981 built
MLS® R3069941 , Macdonald Realty Westmar
202 1520 Vidal Street, White Rock, BC
$519,900

202 1520 Vidal Street, White Rock, BC

2 Beds
2 Baths
1100 sqft
1981 built
MLS® R3078278 , RE/MAX Performance Realty

Similar Sold listings

🔒 Join or Sign In • Real estate boards need a verified account to see photos & sold data

6 14065 Nico Wynd Place, Surrey, BC
Sold
$629,900

6 14065 Nico Wynd Place, Surrey, BC

1 Beds
1 Baths
800 sqft
1983 built
MLS® R2823881 , RE/MAX Colonial Pacific Realty & RE/MAX Colonial Pacific Realty
609 15111 Russell Avenue, White Rock, BC
Sold
$539,900

609 15111 Russell Avenue, White Rock, BC

2 Beds
2 Baths
1149 sqft
1987 built
MLS® R2795572 , Coldwell Banker Marquise Realty & Coldwell Banker Marquise Realty
401 1442 Foster Street, White Rock, BC
Sold
$489,900

401 1442 Foster Street, White Rock, BC

1 Beds
1 Baths
862 sqft
1982 built
MLS® R2999389 , Homelife Benchmark Realty Corp.
107 1840 E Southmere Crescent, Surrey, BC
Sold
$599,000

107 1840 E Southmere Crescent, Surrey, BC

2 Beds
2 Baths
1071 sqft
1988 built
MLS® R2984743 , RE/MAX Colonial Pacific Realty & RE/MAX Colonial Pacific Realty
309 15875 Marine Drive, White Rock, BC
Sold
$689,900

309 15875 Marine Drive, White Rock, BC

2 Beds
2 Baths
1131 sqft
1990 built
MLS® R2988119 , Oakwyn Realty Ltd.
305 1520 Vidal Street, White Rock, BC
Sold
$589,900

305 1520 Vidal Street, White Rock, BC

2 Beds
2 Baths
1380 sqft
1981 built
MLS® R2955061 , Real Broker B.C. Ltd.
107 1720 Southmere Crescent, Surrey, BC
Sold
$478,800

107 1720 Southmere Crescent, Surrey, BC

2 Beds
1 Baths
902 sqft
1982 built
MLS® R2821203 , RE/MAX All Points Realty
205 1331 Fir Street, White Rock, BC
Sold
$424,900

205 1331 Fir Street, White Rock, BC

2 Beds
1 Baths
780 sqft
1973 built
MLS® R2928493 , One Percent Realty Ltd.
102 1327 Best Street, White Rock, BC
Sold
$679,000

102 1327 Best Street, White Rock, BC

2 Beds
2 Baths
1489 sqft
1989 built
MLS® R2964935 , RE/MAX Colonial Pacific Realty
203 1320 Fir Street, White Rock, BC
Sold
$444,900

203 1320 Fir Street, White Rock, BC

2 Beds
1 Baths
844 sqft
1974 built
MLS® R2914191 , RE/MAX Sabre Realty Group

Book a tour

Please complete the form. We will the arrangements and give you a call, typically within 1-2 hours. Or Call Us 778-918-5990
Thank you Your message has been sent
Go See This Home Now