2 150 E 51st Ave, Vancouver, BC, MLS® R3076392

$1,799,000
Est. Mortgage /mo

$1,799,000
Est. Mortgage /mo
Dan Marusin
Dan Marusin
Renanza Realty
778-918-5990
Award-Winning REALTOR® with 11+ Years of Experience Serving Greater Vancouver
Go See This Home Now
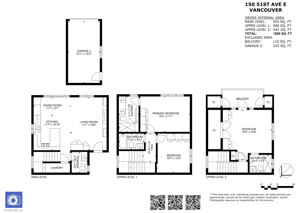
3 Beds
4 Baths
3 Stories
lot 0 sqft
1585 sqft
2025 built
Show more info
Photos
Map
Street view
Schools
Crime
Commute
Shop & Eat

2 150 E 51st Ave, Vancouver, BC | MLS® R3076392 Property Details

Discover this stunning brand new 1,585 sqft back-unit half duplex perfectly situated West of Main Street near Langara Golf Course. This beautifully crafted home features 3 bedrooms and 4 bathrooms across 3 spacious levels with an ideal open-concept layout. The designer kitchen boats premium appliances and custom cabinetry. Enjoy the comfort of air-conditioning and quality finishes throughout. The private yard offers an inviting outdoor retreat, while the home includes a single garage plus an additional parking pad. Steps to vibrant Main Street shops, restaurants, parks and top schools - modern living in one of Vancouver's finest neighbourhoods. Open House Sun 2-4pm 11 Jan.

General Info

Price $1,799,000
Total Bedrooms 3
Total Bathrooms 3
Half Bathrooms 1
Floor Area Total (sqft) 1585
Lot Size -
Lot Size Depth -
Lot Size Frontage -
Basement None
Basement Features BasementFeatures

Property Metrics

Year Built 2025
Age Of Building 1
Building Type Half Duplex
Property Type Residential
Architecture Style 3 Storey
Stories 3
Appliances Included Washer/Dryer, Dishwasher, Refrigerator, Stove
Building Features BuildingFeatures
Structures Duplex, Residential Attached

Additional Details

MLS® # R3076392
Area Vancouver East
Neighbourhood South Vancouver
City Vancouver
Gross Taxes 0
Ownership Type Freehold NonStrata
Maintenance Fee -
Community Features Shopping Nearby

Heating & Cooling

Fireplace 1
Heating Type Heat Pump
Cooling Air Conditioning

Utilities

Utility Type Community, Electricity Connected, Natural Gas Connected, Water Connected
Utility Sewer Public Sewer, Sanitary Sewer, Storm Sewer
Water (WaterSource) Public

Parking

Total Parking Spaces 2

🔒 Join or Sign In • Real estate boards need a verified account to see Property data

Strata Restrictions -
Rental Restrictions -
Zoning R1-1
Rental Suites None
# of Kitchens 1
Flooring Hardwood, Tile
Foundation Concrete Perimeter
Locker -
View Description -
Units In Development -
Exterior Features Private Yard
Sewer Public Sewer, Sanitary Sewer, Storm Sewer
Roof Asphalt

Property History

🔒 Join or Sign In • Real estate boards need a verified account to see Property data

Status Date Price
Show more

Listed by: RE/MAX City Realty & RE/MAX City Realty & RE/MAX City Realty

NOTE: This representation is based in whole or in part on data generated by the Chilliwack & District Real Estate Board, Fraser Valley Real Estate Board or Greater Vancouver REALTORS® which assumes no responsibility for its accuracy.

Neighborhood Info

Public Schools

Secondary
Sir Winston Churchill Secondary School
1.68 km
Elementary
J.W. Sexsmith Community Elementary School
0.87 km
Elementary
J.W. Sexsmith Community Elementary School
0.87 km

Information includes BC Government Open License data; school details change often and are offered solely as general guidance.

Private Schools

Elementary
St. Andrew's
0.65 km
Secondary
King David High School
1.85 km

Closest Transit

Bus Stop
Southbound Main St @ E 51 Ave
0.08 km
Skytrain
Skytrain @ Langara-49Th Stn
1.02 km

Noise/ Power Lines

Road/Hwy Noise
Possible
Railway/Sky train Noise
Unlikely
Airport/Port Noise
Unlikely
Close to major Power Lines
Unlikely

Other

Agricultural Land Reserve (ALR)
Unlikely
Flood Area
Unlikely
Close to Cemeteries
Unlikely

Welcome to the vibrant community surrounding 2 150 E 51st Avenue, Vancouver, BC, where the MLS real estate listing number is R3076392. As your trusted realtor, I'm excited to share with you the rich details of this area.

Education

As a parent, you'll be pleased to know that your children will have access to top-notch schools in the vicinity. The J.W. Sexsmith Community Elementary School, located just 0.87 km away from 2 150 E 51st Avenue, has a strong reputation for providing a supportive and inclusive learning environment. This school's No Rating is just one aspect of its excellent performance. (MLS listing R3076392)

Sir Winston Churchill Secondary School, also servicing this area, is situated 1.68 km from your new home. With a No Rating, it's clear that this school is committed to providing a well-rounded education for its students.

For those seeking alternative education options, St. Andrew's Elementary independent school is just 0.65 km from your doorstep, boasting a No Rating. King David High School, a nearby secondary independent school, is 1.85 km away, also with a No Rating.

Safety and Crime Rates

As you explore the community surrounding 2 150 E 51st Avenue, you'll be reassured to know that crime rates are Average compared to other Canadian cities. According to Statistics Canada's 2020 report, this neighborhood had 52,217 incidents, with a crime rate of 7,470.82 per 100,000 population. This puts it in a typical urban range.

Breaking down the crime statistics, you'll find that the drug crime rate is Average, with a rating of 229.49 and 1,604 incidents in 2020. The year-over-year change in the illegal substances offenses ranking is a mere 1.58%.

Property crimes, however, are Above Average, with a rating of 5,020.27 and 35,089 incidents in 2020. The year-over-year change in the property misconduct rate is a significant -20.80%.

Demographics and Lifestyle

This neighborhood is home to a diverse population, with 28.6% of residents holding a university certificate or degree, which is Above Average in comparison to other BC neighborhoods. Conversely, 18.7% of the population has no certificate or degree, which is Average compared to the BC average.

The median household income near 2 150 E 51st Avenue, Vancouver, BC, is $63,334, which is Average compared to the British Columbia average. Median personal income is $24,647, which is Low compared to the BC average. Notably, 42.6% of households in this area have a mortgage, which is Low.

Transportation and Commuting

The proximity to public transportation is a significant advantage of living in this area. The Southbound Main St @ E 51 Ave bus station is just 0.08 km away from your new home (MLS listing R3076392).

When it comes to transportation methods, 35.2% of the population uses Public Transport, which is High. Interestingly, 57.3% of the population uses Cars, which is Low. 2.5% of residents use Bicycles, which is Above Average, and 3.9% are walking, which is Average.

Real Estate and Community

The average value of dwellings in this neighborhood is $1,420,312, which is High compared to other areas in British Columbia. With an average owner payment of $1,550, it's Above Average in this area. Tenants, on the other hand, are paying $1,086, which is Average.

44.4% of the population in this district are Renters, which is Above Average compared to other BC cities and areas. As for language proficiency, 87.1% of residents speak only English, which is Below Average. Notably, 8.6% of the population speaks neither English nor French, which is High.

As you explore the community surrounding 2 150 E 51st Avenue, Vancouver, BC, you'll find that it's a vibrant and diverse neighborhood with a strong sense of community. With its excellent schools, safe environment, and easy access to public transportation, this area is an ideal choice for families and individuals alike.

If you're looking for a home that offers the perfect blend of lifestyle amenities and community spirit, look no further than 2 150 E 51st Avenue, Vancouver, BC, MLS listing R3076392. As your trusted realtor, I invite you to explore this wonderful community and make it your home.

Local Info

Calculate your monthly mortgage payments

/month
Principal & Interest
Property Taxes $202
Maintenance fee 0
All figures are informational estimates by Estateblock.com; actual mortgage payments and insurance rates vary by many factors.

Cash Flow Analysis

/month
Mortgage Payment $3201
Monthly Payment $3802
Break Even Down Payment 0%
All figures are informational estimates by Estateblock.com; actual mortgage payments and insurance rates vary by many factors.

Price Evaluation Chart

Filter
Beds Home Types Square Feet Lot Size Year Built
This Home $1,799,000
Vancouver $1,917,855
South Vancouver $1,523,000
Data is based on list prices of similar active listings. This representation is based in whole or in part on data generated by the Chilliwack & District Real Estate Board, Fraser Valley Real Estate Board or Real Estate Board of Greater Vancouver which assumes no responsibility for its accuracy

Listing Price Comparision

This house $1,400,000
Surrey

No comparables

Fleetwood Tynehead $1,399,000 -6.38%
Data is based on list prices of similar active listings. This representation is based in whole or in part on data generated by the Chilliwack & District Real Estate Board, Fraser Valley Real Estate Board or Real Estate Board of Greater Vancouver which assumes no responsibility for its accuracy
Dan Marusin
Dan Marusin
Renanza Realty
778-918-5990
Award-Winning REALTOR® with 11+ Years of Experience Serving Greater Vancouver

Earn Cashback

Potential Cashback for this listing if you buy with us

$0
out of $11,369
0 of 17 missions
(0.0% out of 100%)

Login to track your cashback progress

Sign up on Estateblock.com

$568 / 5.00%

Use the “Hot Deal” module on our website

$227 / 2.00%

Sign up for our Newsletter

$227 / 2.00%

Create a saved search on Estateblock.com

$341 / 3.00%

Book a Property Showing with us

$568 / 5.00%

Get a mortgage through one of our recommended brokers

$1,137 / 10.00%

Use our recommended insurance provider

$341 / 3.00%

Use our recommended notary for closing

$341 / 3.00%

Sign an Exclusive Buyer’s Agency Agreement with us

$1,137 / 10.00%

Share Estateblock.com on social media with a short intro

$341 / 3.00%

Refer a friend who successfully buys or sells with us

$2,274 / 20.00%

Sell your home with us

$2,274 / 20.00%

Leave a Public Review in Google

$568 / 5.00%

Follow us on Insta or FB and tag us in a post

$227 / 2.00%

Create a short video testimonial

$227 / 2.00%

Leave a Facebook review

$227 / 2.00%

Talk with one of our mortgage brokers

$341 / 3.00%

Similar nearby listings

1421 E 62nd Avenue Avenue, Vancouver, BC
$1,799,000

1421 E 62nd Avenue Avenue, Vancouver, BC

4 Beds
4 Baths
1777 sqft
2023 built
MLS® R3077913 , Sutton Premier Realty & Sutton Premier Realty
1423 E 62nd Avenue, Vancouver, BC
$1,799,000

1423 E 62nd Avenue, Vancouver, BC

4 Beds
4 Baths
1777 sqft
2023 built
MLS® R3077799 , Sutton Premier Realty
1 10700 Aragon Road, Richmond, BC
$1,950,000

1 10700 Aragon Road, Richmond, BC

4 Beds
5 Baths
2054 sqft
2026 built
MLS® R3078195 , Sutton Group Seafair Realty & Sutton Group Seafair Realty
2 3216 Venables Street, Vancouver, BC
$1,399,000

2 3216 Venables Street, Vancouver, BC

3 Beds
4 Baths
1430 sqft
2025 built
MLS® R3050013 , Sutton Premier Realty
2540 Grant Street, Vancouver, BC
$1,428,000

2540 Grant Street, Vancouver, BC

3 Beds
2 Baths
1264 sqft
2025 built
MLS® R3046667 , Stilhavn Real Estate Services
2837 W 31st Avenue, Vancouver, BC
$2,799,900

2837 W 31st Avenue, Vancouver, BC

5 Beds
4 Baths
2318 sqft
2025 built
MLS® R3068093 , RE/MAX Crest Realty
2045 E 51 Avenue, Vancouver, BC
$1,580,000

2045 E 51 Avenue, Vancouver, BC

3 Beds
3 Baths
1229 sqft
2021 built
MLS® R2989597 , RE/MAX Westcoast
1 638 E 46th Avenue, Vancouver, BC
NEW
$1,498,000

1 638 E 46th Avenue, Vancouver, BC

3 Beds
4 Baths
1547 sqft
2025 built
MLS® R3081999 , Sutton Group-West Coast Realty
6056 Victoria Drive, Vancouver, BC
$1,299,000

6056 Victoria Drive, Vancouver, BC

4 Beds
2 Baths
1120 sqft
2013 built
MLS® R3040132 , Macdonald Realty Westmar
4541 Hoy Street, Vancouver, BC
$1,598,000

4541 Hoy Street, Vancouver, BC

4 Beds
4 Baths
1724 sqft
2022 built
MLS® R3079358 , Nu Stream Realty Inc.

Similar Sold listings

🔒 Join or Sign In • Real estate boards need a verified account to see photos & sold data

1 445 E 57 Avenue, Vancouver, BC
Sold
$1,499,000

1 445 E 57 Avenue, Vancouver, BC

5 Beds
4 Baths
1579 sqft
2024 built
MLS® R2916537 , RE/MAX City Realty & RE/MAX City Realty & RE/MAX City Realty
5806 Rupert Street, Vancouver, BC
Sold
$1,399,000

5806 Rupert Street, Vancouver, BC

4 Beds
4 Baths
1301 sqft
2023 built
MLS® R2890615 , RE/MAX City Realty & RE/MAX City Realty & RE/MAX City Realty
5584 Rupert Street, Vancouver, BC
Sold
$1,850,000

5584 Rupert Street, Vancouver, BC

4 Beds
5 Baths
2339 sqft
2024 built
MLS® R2882145 , Royal Pacific Realty (Kingsway) Ltd.
1 4769 Commercial Street, Vancouver, BC
Sold
$1,549,000

1 4769 Commercial Street, Vancouver, BC

3 Beds
4 Baths
1463 sqft
2024 built
MLS® R2973948 , Royal Pacific Realty Corp. & Oakwyn Realty Ltd.
6750 Lakeview Avenue, Burnaby, BC
Sold
$1,998,000

6750 Lakeview Avenue, Burnaby, BC

4 Beds
4 Baths
2051 sqft
2022 built
MLS® R2776032 , LeHomes Realty Premier
3814 W 15th Avenue, Vancouver, BC
Sold
$2,388,000

3814 W 15th Avenue, Vancouver, BC

3 Beds
3 Baths
1370 sqft
2024 built
MLS® R2952206 , Dracco Pacific Realty & Dracco Pacific Realty
#2 2522 E 15th Avenue, Vancouver, BC
Sold
$1,999,900

#2 2522 E 15th Avenue, Vancouver, BC

3 Beds
4 Baths
1753 sqft
2024 built
MLS® R2958044 , RE/MAX City Realty & Royal Pacific Realty (Kingsway) Ltd.
2868 Mcgill Street, Vancouver, BC
Sold
$1,299,777

2868 Mcgill Street, Vancouver, BC

3 Beds
4 Baths
1468 sqft
2023 built
MLS® R2816043 , Sutton Group-West Coast Realty & Sutton Group-West Coast Realty
380 E Woodstock Avenue, Vancouver, BC
Sold
$1,498,000

380 E Woodstock Avenue, Vancouver, BC

3 Beds
4 Baths
1452 sqft
2024 built
MLS® R2835396 , Sutton Group-West Coast Realty
3115 Venables Street, Vancouver, BC
Sold
$1,648,000

3115 Venables Street, Vancouver, BC

5 Beds
4 Baths
1739 sqft
2023 built
MLS® R2819160 , RE/MAX Real Estate Services

Book a tour

Please complete the form. We will the arrangements and give you a call, typically within 1-2 hours. Or Call Us 778-918-5990
Thank you Your message has been sent
Go See This Home Now