2185 200 St, Langley, BC, MLS® R3041258

$5,400,000
Est. Mortgage /mo

10.0% price reduction

$5,400,000
$5,999,999
Est. Mortgage /mo
Dan Marusin
Dan Marusin
Renanza Realty
778-918-5990
Award-Winning REALTOR® with 11+ Years of Experience Serving Greater Vancouver
Go See This Home Now
4 Beds
1 Baths
1 Stories
lot 111078 sqft
1388 sqft
1954 built
Show more info
Photos
Map
Street view
Schools
Crime
Commute
Shop & Eat

2185 200 St, Langley, BC | MLS® R3041258 Property Details

10.0% price reduction

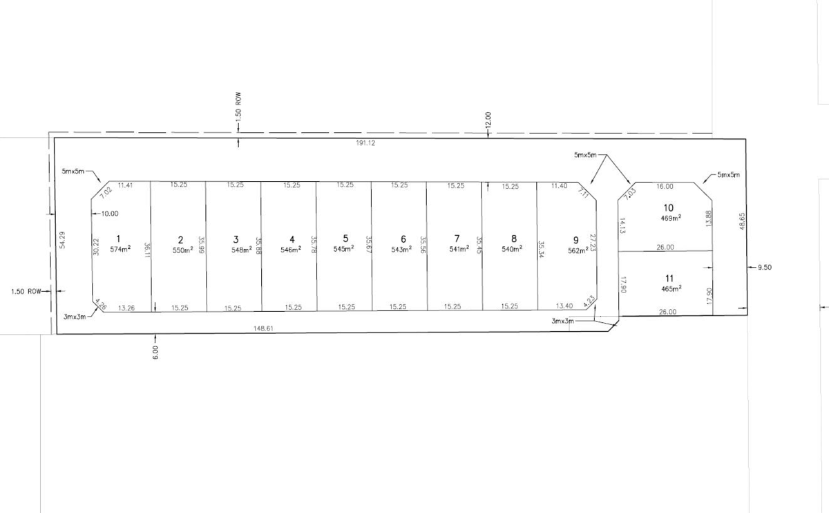
Attn Investors, Developers & Builders! Prime 2.55-acre development site on 200 St in Brookswood. Owner is preparing an application with the TOL, expected within 2 months. Preliminary plans indicate potential for 11–12 lots, each over 5,000 sq. ft., with rear lane access designed to accommodate 22 half duplexes + 22 coach homes. Professional 3D renderings showcase the future vision of this exciting project. The property is mostly cleared, free of creeks, and currently features a cozy 4-bed rancher with double garage and ample parking—perfect to live in, rent out, or hold for future development. This area of Brookswood is rapidly growing with new projects and infrastructure already underway, making this an outstanding opportunity to invest or build in one of Langley’.

General Info

Price $5,400,000
Total Bedrooms 4
Total Bathrooms 1
Half Bathrooms 0
Floor Area Total (sqft) 1388
Lot Size 2.55
Lot Size Depth Metres
Lot Size Frontage 167.98
Basement None
Basement Features BasementFeatures

Property Metrics

Year Built 1954
Age Of Building 71
Building Type Single Family Residence
Property Type Residential
Stories 1
Appliances Included Washer/Dryer, Dishwasher, Refrigerator, Stove
Building Features BuildingFeatures
Structures Residential Detached

Additional Details

MLS® # R3041258
Area Langley
Neighbourhood Brookswood Langley
City Langley
Gross Taxes $26,103.53
Ownership Type Freehold NonStrata
Maintenance Fee -

Heating & Cooling

Fireplace 1
Heating Type Electric

Utilities

Utility Type Water Connected
Utility Sewer Septic Tank
Water (WaterSource) Public

Parking

Parking Type Additional Parking, Garage Double, Front Access, Gravel
Total Parking Spaces 2

🔒 Join or Sign In • Real estate boards need a verified account to see Property data

Strata Restrictions -
Rental Restrictions -
Zoning SR2
Rental Suites -
# of Kitchens 1
Flooring Mixed
Foundation Slab
Locker -
View -
View Description -
Units In Development -
Exterior Features No Outdoor Area, Private Yard
Sewer Septic Tank

Property History

🔒 Join or Sign In • Real estate boards need a verified account to see Property data

Status Date Price
Show more

Listed by: Century 21 Coastal Realty Ltd.

NOTE: This representation is based in whole or in part on data generated by the Chilliwack & District Real Estate Board, Fraser Valley Real Estate Board or Greater Vancouver REALTORS® which assumes no responsibility for its accuracy.

Neighborhood Info

Public Schools

Elementary
Glenwood Elementary School
Average
1.72 km
5.5/10
Secondary
Brookswood Secondary School
3.67 km

Information includes BC Government Open License data; school details change often and are offered solely as general guidance.

Private Schools

Elementary
St. Catherines School
2.08 km
9.4/10
Excellent
Elementary, Secondary
Credo Christian Schools
7.15 km

Closest Transit

Bus Stop
Northbound 200 St @ 22 Ave
0.09 km
Skytrain
Skytrain @ Langley City Centre Station ( Under Construction till 2029)
7.23 km

Noise/ Power Lines

Road/Hwy Noise
Unlikely
Railway/Sky train Noise
Unlikely
Airport/Port Noise
Unlikely
Close to major Power Lines
Unlikely

Other

Agricultural Land Reserve (ALR)
Unlikely
Flood Area
Unlikely
Close to Cemeteries
Unlikely

2185 200 Street is serviced by Glenwood Elementary School. The property with listing MLS® R3041258 is located 1.72 km from the school. Glenwood Elementary School has a rating of Rating 5.5/10.

This home with address 2185 200 Street, Langley, BC is also serviced by Brookswood Secondary School and located 3.67 km from it. Brookswood Secondary School has a rating of No Rating.

The closest Elementary independent school to this home for sale located at 2185 200 Street is St. Catherines School with School's rating Rating 9.4/10, located 2.08 km from this home.

The closest to this address 2185 200 Street Secondary independent school is Credo Christian Schools with School's rating No Rating, located 7.15 km from this home

The freshest crime data from Statistics Canada are from 2020. There were 10,154 volation disturbances in this neighbourhood. The overall crime rate near the address - 2185 200 Street, Langley, BC is 7,580.38. Rate is the amount of incidents per 100,000 population. Comparing to other Canadian cities it has Average rate in 2020. Year by year change in the total crime rate is -11.06%

Drug crime rate next to the listing MLS® R3041258 is Average comparing to other neighbourhoods. The illegal substances offences rating is 243.37. There were 326 illegal substances lawbreaking disturbances in this city in 2020 . Year by year change in the illegal substances offences ranking is -2.38%

Property crimes in the neighbourhood close to real estate listing for sale 2185 200 Street are Above Average. Property misconduct rating adjacent to MLS® R3041258 is 4,065.67. There were 5,446 in the neighbourhood in 2020. Year by year change in the property misconduct rate is -19.88%

There were 1,456 violent lawbreaking disorders in 2020. 1,086.96 and it is Below Average rate comparing to other BC municipalities. Year by year change in the violent crime rate is -6.24%

The closest Bus station is Northbound 200 St @ 22 Ave in 0.09 km away from this listing with - MLS® R3041258.

12.2% of people with university certificate/degree live in this neighbourhood adjacent to the 2185 200 Street which is Below Average in comparison with other BC neighbourhoods. 19.8% of population in this neighbourhood that is near the Listing MLS® R3041258 have no certificate or degree. This number is Average compared to the average in BC.

Median Household Income near this dwelling with the address 2185 200 Street, Langley, BC is $70699 which is Average in comparison with the British Columbia average. Median personal income near this dwelling with listing - MLS® R3041258 is $33690 which is Average in comparison with the BC average. % of the Households with a mortgage in this census subdivision is 42.5% which is Low.

Unemployment rate in the area around Real Estate Listing # R3041258 is 2.9 which is Low in comparison to the other province neighbourhoods.

This real estate is located in 2185 200 Street Brookswood Langley where population change between 2011 and 2016 was 0.7%. This is Average in comparison to average growth rate of this region.

Population density per square kilometre in this community near the address 2185 200 Street, Langley, BC is 390.9 which is Average people per sq.km.

Average size of families in the area adjacent to home for sale 2185 200 Street is 2.7. This is Below Average number in comparison to the whole region. Percent of families with children near by the Real Estate Listing - MLS® R3041258 is 47.1% and it is Below Average. % of Married or living common law is around 60.7% and it is Average.

Average age of the population close to the 2185 200 Street is 48.6 . This percentage is High in comparison to other BC cities.

Average value of dwellings in this neighbourhood around 2185 200 Street, Langley, BC is $835116 and this is High comparing to other areas in British Columbia

Average Owner payments are Average in the area adjacent to 2185 200 Street. $1165 owners spent in average for the dwelling. Tenants are paying $1481 in this district close to MLS® R3041258 and it is High comparing to other cities.

15.9% of Population in this district near the 2185 200 Street are Renters and it is Below Average comparing to other BC cities and areas.

% of English and French speakers around real estate listing 2185 200 Street, Langley, BC is 4.6%, it is Below Average, % of English speakers only is 94.3% and Above Average. % of Neither English nor French speakers close to home for sale 2185 200 Street, Langley, BC is 1.2% and it is Average comparing to other BC cities.

4% of all population in the area around this property with the address 2185 200 Street, Langley, BC using Public Transport which is Below Average, 93.4% of using population are using Cars around MLS® R3041258, which is Above Average. 0.7% of people using Bicycles around the 2185 200 Street and it is Below Average. 1.7% of population are walking which is Low

Local Info

Calculate your monthly mortgage payments

/month
Principal & Interest
Property Taxes $202
Maintenance fee 0
All figures are informational estimates by Estateblock.com; actual mortgage payments and insurance rates vary by many factors.

Cash Flow Analysis

/month
Mortgage Payment $3201
Monthly Payment $3802
Break Even Down Payment 0%
All figures are informational estimates by Estateblock.com; actual mortgage payments and insurance rates vary by many factors.

Price Evaluation Chart

Filter
Beds Home Types Square Feet Lot Size Year Built
This Home $5,400,000
Langley $2,245,000
Brookswood Langley No comparables
Data is based on list prices of similar active listings. This representation is based in whole or in part on data generated by the Chilliwack & District Real Estate Board, Fraser Valley Real Estate Board or Real Estate Board of Greater Vancouver which assumes no responsibility for its accuracy

Listing Price Comparision

This house $1,400,000
Surrey

No comparables

Fleetwood Tynehead $1,399,000 -6.38%
Data is based on list prices of similar active listings. This representation is based in whole or in part on data generated by the Chilliwack & District Real Estate Board, Fraser Valley Real Estate Board or Real Estate Board of Greater Vancouver which assumes no responsibility for its accuracy
Dan Marusin
Dan Marusin
Renanza Realty
778-918-5990
Award-Winning REALTOR® with 11+ Years of Experience Serving Greater Vancouver

Earn Cashback

Potential Cashback for this listing if you buy with us

$0
out of $32,075
0 of 17 missions
(0.0% out of 100%)

Login to track your cashback progress

Sign up on Estateblock.com

$1,604 / 5.00%

Use the “Hot Deal” module on our website

$642 / 2.00%

Sign up for our Newsletter

$642 / 2.00%

Create a saved search on Estateblock.com

$962 / 3.00%

Book a Property Showing with us

$1,604 / 5.00%

Get a mortgage through one of our recommended brokers

$3,208 / 10.00%

Use our recommended insurance provider

$962 / 3.00%

Use our recommended notary for closing

$962 / 3.00%

Sign an Exclusive Buyer’s Agency Agreement with us

$3,208 / 10.00%

Share Estateblock.com on social media with a short intro

$962 / 3.00%

Refer a friend who successfully buys or sells with us

$6,415 / 20.00%

Sell your home with us

$6,415 / 20.00%

Leave a Public Review in Google

$1,604 / 5.00%

Follow us on Insta or FB and tag us in a post

$642 / 2.00%

Create a short video testimonial

$642 / 2.00%

Leave a Facebook review

$642 / 2.00%

Talk with one of our mortgage brokers

$962 / 3.00%

Book a tour

Please complete the form. We will the arrangements and give you a call, typically within 1-2 hours. Or Call Us 778-918-5990
Thank you Your message has been sent
Go See This Home Now