3254 E 5th Ave, Vancouver, BC, MLS® R3074410

$1,678,000
Est. Mortgage /mo

$1,678,000
$1,738,000
Est. Mortgage /mo
Dan Marusin
Dan Marusin
Renanza Realty
778-918-5990
Award-Winning REALTOR® with 11+ Years of Experience Serving Greater Vancouver
Go See This Home Now
5 Beds
3 Baths
2 Stories
lot 4026 sqft
2505 sqft
1934 built
Show more info
Photos
Map
Street view
Schools
Crime
Commute
Shop & Eat

3254 E 5th Ave, Vancouver, BC | MLS® R3074410 Property Details

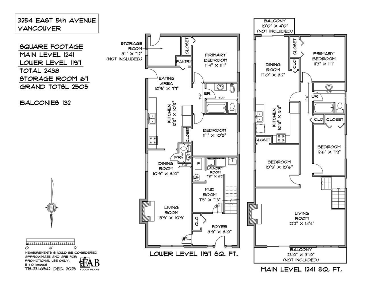
The property is a detached single-family home located at 3254 East 5th Avenue in East Vancouver. Originally built in 1934, it is a two-level house with a full lower-level two-bedroom suite and a 3-bedroom main floor, offering approximately 2,505 square feet of total living space. The home sits on a 4,026-square-foot lot with rear-lane access and a detached double garage. Finished with stucco and brick and topped by a tar-and-gravel roof, the house is in average overall condition with dated interior finishes. The property is located in the established Renfrew neighbourhood, a quiet residential area characterized by single-family homes, and sits directly across from Sunrise Park with convenient access to schools, transit, shopping, and major roadways. Thank You

General Info

Price $1,678,000
Total Bedrooms 5
Total Bathrooms 2
Half Bathrooms 1
Floor Area Total (sqft) 2505
Lot Size 4026
Lot Size Depth Feet
Lot Size Frontage 33
Basement Full, Finished, Exterior Entry
Basement Features BasementFeatures

Property Metrics

Year Built 1934
Age Of Building 91
Building Type Single Family Residence
Property Type Residential
Architecture Style Basement Entry
Stories 2
Building Features BuildingFeatures
Structures Residential Detached

Additional Details

MLS® # R3074410
Area Vancouver East
Neighbourhood Renfrew VE
City Vancouver
Gross Taxes $8,864.06
Ownership Type Freehold NonStrata
Maintenance Fee -

Heating & Cooling

Fireplace 2
Heating Type Hot Water, Natural Gas, Radiant

Utilities

Utility Type Electricity Connected, Natural Gas Connected, Water Connected
Utility Sewer Public Sewer, Sanitary Sewer, Storm Sewer
Water (WaterSource) Public

Parking

Parking Type Detached, Rear Access, Asphalt
Total Parking Spaces 2

🔒 Join or Sign In • Real estate boards need a verified account to see Property data

Strata Restrictions -
Rental Restrictions -
Zoning R1-1
Rental Suites Legal Suite
Laundry In Unit
# of Kitchens 2
Flooring Wall/Wall/Mixed
Foundation Concrete Perimeter, Slab
Locker -
View 1
View Description Burnaby
Units In Development -
Exterior Features Balcony, Private Yard
Sewer Public Sewer, Sanitary Sewer, Storm Sewer

Property History

🔒 Join or Sign In • Real estate boards need a verified account to see Property data

Status Date Price
Show more

Listed by: RE/MAX LIFESTYLES REALTY

NOTE: This representation is based in whole or in part on data generated by the Chilliwack & District Real Estate Board, Fraser Valley Real Estate Board or Greater Vancouver REALTORS® which assumes no responsibility for its accuracy.

Neighborhood Info

Public Schools

Secondary
Vancouver Technical Secondary School
9.4 km
Elementary
Thunderbird Elementary School
0.35 km

Information includes BC Government Open License data; school details change often and are offered solely as general guidance.

Private Schools

Elementary
St.Jude's School
1.12 km
10/10
Excellent
Secondary
Notre Dame Regional Secondary School
1.39 km

Closest Transit

Bus Stop
Southbound Rupert St @ E 5th Ave
0.11 km
Skytrain
Skytrain @ Rupert Stn
0.46 km

Noise/ Power Lines

Road/Hwy Noise
Possible
Railway/Sky train Noise
Possible
Airport/Port Noise
Unlikely
Close to major Power Lines
Unlikely

Other

Agricultural Land Reserve (ALR)
Unlikely
Flood Area
Unlikely
Close to Cemeteries
Unlikely

Welcome to 3254 E 5th Avenue, a beautiful home located in the heart of Vancouver, BC

As we step into this stunning property, I want to share with you the exciting details about the neighborhood and community that surround it. With MLS® R3074410, you'll experience the best of both worlds – a tranquil atmosphere and easy access to all the amenities you need.

Schools:

First, let's talk about the schools. Your kids will thrive in the excellent education system here. Thunderbird Elementary School is a short 0.35 km away from this home, with a rating of No Rating. They'll also have access to Vancouver Technical Secondary School, located 9.4 km from the property, also with a rating of No Rating. But don't worry, there's more! St. Jude's School, an independent elementary school, is just 1.12 km away, with a stellar rating of 10/10. This is perfect for families who value education and want their children to receive the best possible care. And for secondary education, Notre Dame Regional Secondary School is just 1.39 km away, with a rating of No Rating.

Safety:

Now, let's talk about safety. According to Statistics Canada's 2020 report, this neighborhood has an average crime rate, with 7,470.82 incidents per 100,000 population. This means you can feel comfortable and secure in your new home. The rate of drug-related crimes is also average, with 229.49 incidents per 100,000 population. And if you're concerned about property crimes, rest assured that the rate is above average, but has been decreasing by 20.80% over the years. Violent crimes are also below average, with 1,311.69 incidents per 100,000 population.

Demographics:

This neighborhood is a melting pot of cultures, with a diverse population. 18.2% of residents have a university certificate or degree, which is average compared to other BC neighborhoods. However, 29.8% of the population has no certificate or degree, which is high compared to the average in BC. The median household income is $53,595, which is below average compared to the British Columbia average. But don't worry, the median personal income is $22,194, which is low compared to the BC average. The unemployment rate is 7.2%, which is average compared to other province neighborhoods.

Lifestyle:

Now, let's talk about the lifestyle in this neighborhood. This community is perfect for families, with 69.6% of families having children, which is high compared to other areas. The average age of the population is 43, which is above average compared to other BC cities. And, with a population density of 4,848.1 people per square kilometer, you'll never be bored here! The average size of families is 2.9, which is average compared to the whole region.

Transit:

Getting around is easy in this neighborhood. The closest bus station is Southbound Rupert St @ E 5th Ave, just 0.11 km away from this listing. You'll have access to all the amenities you need, from grocery stores to restaurants, without having to worry about traffic.

Amenities:

This neighborhood has everything you need to live a comfortable and happy life. With an average value of dwellings at $1,357,318, you'll be living in one of the most sought-after areas in Vancouver. The average owner payments are above average, with $1,371 spent on a dwelling. And, with an average of 50.1% of the population renting, you'll have plenty of options for housing.

Language:

Did you know that 80.6% of the population speaks only English, which is below average? But, don't worry, there are still plenty of opportunities to learn and practice other languages.

Transportation:

Getting around is easy in this neighborhood. 33.8% of the population uses public transportation, which is high compared to other BC cities. 59.9% of the population uses cars, which is low compared to other cities. And, 2.1% of the population uses bicycles, which is above average.

Real Estate:

Lastly, let's talk about the real estate. With an average value of dwellings at $1,357,318, you'll be living in one of the most sought-after areas in Vancouver. The average owner payments are above average, with $1,371 spent on a dwelling. And, with an average of 50.1% of the population renting, you'll have plenty of options for housing.

In Conclusion:

3254 E 5th Avenue, Vancouver, BC MLS® R3074410

Local Info

Calculate your monthly mortgage payments

/month
Principal & Interest
Property Taxes $202
Maintenance fee 0
All figures are informational estimates by Estateblock.com; actual mortgage payments and insurance rates vary by many factors.

Cash Flow Analysis

/month
Mortgage Payment $3201
Monthly Payment $3802
Break Even Down Payment 0%
All figures are informational estimates by Estateblock.com; actual mortgage payments and insurance rates vary by many factors.

Price Evaluation Chart

Filter
Beds Home Types Square Feet Lot Size Year Built
This Home $1,678,000
Vancouver $2,280,345
Renfrew VE $2,038,000
Data is based on list prices of similar active listings. This representation is based in whole or in part on data generated by the Chilliwack & District Real Estate Board, Fraser Valley Real Estate Board or Real Estate Board of Greater Vancouver which assumes no responsibility for its accuracy

Listing Price Comparision

This house $1,400,000
Surrey

No comparables

Fleetwood Tynehead $1,399,000 -6.38%
Data is based on list prices of similar active listings. This representation is based in whole or in part on data generated by the Chilliwack & District Real Estate Board, Fraser Valley Real Estate Board or Real Estate Board of Greater Vancouver which assumes no responsibility for its accuracy
Dan Marusin
Dan Marusin
Renanza Realty
778-918-5990
Award-Winning REALTOR® with 11+ Years of Experience Serving Greater Vancouver

Earn Cashback

Potential Cashback for this listing if you buy with us

$0
out of $10,674
0 of 17 missions
(0.0% out of 100%)

Login to track your cashback progress

Sign up on Estateblock.com

$534 / 5.00%

Use the “Hot Deal” module on our website

$213 / 2.00%

Sign up for our Newsletter

$213 / 2.00%

Create a saved search on Estateblock.com

$320 / 3.00%

Book a Property Showing with us

$534 / 5.00%

Get a mortgage through one of our recommended brokers

$1,067 / 10.00%

Use our recommended insurance provider

$320 / 3.00%

Use our recommended notary for closing

$320 / 3.00%

Sign an Exclusive Buyer’s Agency Agreement with us

$1,067 / 10.00%

Share Estateblock.com on social media with a short intro

$320 / 3.00%

Refer a friend who successfully buys or sells with us

$2,135 / 20.00%

Sell your home with us

$2,135 / 20.00%

Leave a Public Review in Google

$534 / 5.00%

Follow us on Insta or FB and tag us in a post

$213 / 2.00%

Create a short video testimonial

$213 / 2.00%

Leave a Facebook review

$213 / 2.00%

Talk with one of our mortgage brokers

$320 / 3.00%

Similar nearby listings

3140 E 52nd Avenue, Vancouver, BC
$1,750,000

3140 E 52nd Avenue, Vancouver, BC

3 Beds
1 Baths
2022 sqft
1948 built
MLS® R3069445 , Macdonald Realty
5416 Joyce Street, Vancouver, BC
$1,475,000

5416 Joyce Street, Vancouver, BC

6 Beds
4 Baths
2025 sqft
1945 built
MLS® R3072772 , RE/MAX City Realty
1511 Barclay Street, Vancouver, BC
$2,998,000

1511 Barclay Street, Vancouver, BC

4 Beds
3 Baths
2542 sqft
1922 built
MLS® R3038551 , RE/MAX Crest Realty
2141 E Broadway, Vancouver, BC
$3,300,000

2141 E Broadway, Vancouver, BC

7 Beds
3 Baths
2219 sqft
1931 built
MLS® R3012557 , Pacific Evergreen Realty Ltd.
2161 E Broadway, Vancouver, BC
$3,300,000

2161 E Broadway, Vancouver, BC

7 Beds
3 Baths
2242 sqft
1945 built
MLS® R3012373 , Pacific Evergreen Realty Ltd.
2831 E Broadway, Vancouver, BC
$3,880,000

2831 E Broadway, Vancouver, BC

6 Beds
2 Baths
1960 sqft
1947 built
MLS® R2864124 , Royal Pacific Realty (Kingsway) Ltd.
1805 E 51st Avenue, Vancouver, BC
$1,680,000

1805 E 51st Avenue, Vancouver, BC

6 Beds
2 Baths
1846 sqft
1947 built
MLS® R3071373 , LeHomes Realty Premier
2645 W 6th Avenue, Vancouver, BC
$2,198,000

2645 W 6th Avenue, Vancouver, BC

5 Beds
3 Baths
2092 sqft
1927 built
MLS® R3065468 , Macdonald Realty
2641 E 7th Avenue, Vancouver, BC
$1,698,000

2641 E 7th Avenue, Vancouver, BC

5 Beds
3 Baths
2390 sqft
1928 built
MLS® R3049459 , Interlink Realty
3409 E Pender Street, Vancouver, BC
$1,638,000

3409 E Pender Street, Vancouver, BC

5 Beds
2 Baths
1902 sqft
1926 built
MLS® R3025995 , Sutton Group-West Coast Realty

Similar Sold listings

🔒 Join or Sign In • Real estate boards need a verified account to see photos & sold data

866 W 59th Avenue, Vancouver, BC
Sold
$1,799,000

866 W 59th Avenue, Vancouver, BC

6 Beds
4 Baths
2241 sqft
1925 built
MLS® R3067155 , LeHomes Realty Premier
6318 Sophia Street, Vancouver, BC
Sold
$1,859,000

6318 Sophia Street, Vancouver, BC

5 Beds
2 Baths
1908 sqft
1926 built
MLS® R2860472 , Macdonald Realty
348 E 19th Avenue, Vancouver, BC
Sold
$2,498,000

348 E 19th Avenue, Vancouver, BC

6 Beds
3 Baths
2629 sqft
1927 built
MLS® R3005358 , Dexter Realty & Dexter Realty
1071 E 10th Avenue, Vancouver, BC
Sold
$2,098,000

1071 E 10th Avenue, Vancouver, BC

4 Beds
2 Baths
2369 sqft
1926 built
MLS® R3021222 , Sutton Group-West Coast Realty
7445 19th Avenue, Burnaby, BC
Sold
$1,738,888

7445 19th Avenue, Burnaby, BC

5 Beds
4 Baths
2101 sqft
1923 built
MLS® R2998685 , eXp Realty
65 W 21st Avenue, Vancouver, BC
Sold
$2,538,000

65 W 21st Avenue, Vancouver, BC

3 Beds
2 Baths
1780 sqft
1939 built
MLS® R2978472 , RE/MAX Real Estate Services
1258 Park Drive, Vancouver, BC
Sold
$1,599,000

1258 Park Drive, Vancouver, BC

4 Beds
1 Baths
1694 sqft
1942 built
MLS® R2997717 , RE/MAX Real Estate Services
2248 Graveley Street, Vancouver, BC
Sold
$2,399,000

2248 Graveley Street, Vancouver, BC

6 Beds
4 Baths
2863 sqft
1920 built
MLS® R2879358 , Century 21 In Town Realty
6328 Commercial Street, Vancouver, BC
Sold
$1,628,000

6328 Commercial Street, Vancouver, BC

4 Beds
2 Baths
2113 sqft
1948 built
MLS® R2994547 , RE/MAX LIFESTYLES REALTY & Dexter Realty
4789 Dumfries Street, Vancouver, BC
Sold
$1,788,000

4789 Dumfries Street, Vancouver, BC

4 Beds
2 Baths
1767 sqft
1945 built
MLS® R2817652 , RE/MAX Crest Realty

Book a tour

Please complete the form. We will the arrangements and give you a call, typically within 1-2 hours. Or Call Us 778-918-5990
Thank you Your message has been sent
Go See This Home Now