3455 Maple St, Vancouver, BC, MLS® R3073549

$5,998,000
Est. Mortgage /mo

28.04% cheaper than comparables

$5,998,000
Est. Mortgage /mo
Dan Marusin
Dan Marusin
Renanza Realty
778-918-5990
Award-Winning REALTOR® with 11+ Years of Experience Serving Greater Vancouver
Go See This Home Now
5 Beds
8 Baths
2 Stories
lot 11563 sqft
5893 sqft
2025 built
Show more info
Photos
Map
Street view
Schools
Crime
Commute
Shop & Eat

3455 Maple St, Vancouver, BC | MLS® R3073549 Property Details

28.04% cheaper than comparables

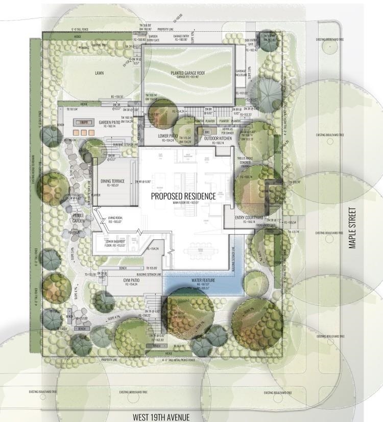
The Quarry House - a RARE chance in coveted First Shaughnessy. This prominent 11,560sf corner lot offers an opportunity that likely will never be repeated: to carry forward approvals for a brand-new contemporary masterpiece by Measured Architecture, Paul Sangha and Powers Construction. This elite team has spent almost two years thoughtfully designing this nearly 6,000sf family residence for modern living, open flow and extended gatherings. The next owner can step in now, save 2 years of planning, and enjoy a scale and design that would not be approved today. Act quick, as once the current permits expire this one of a kind path to building a contemporary interpretation of historic Shaughnessy character is gone. This is the definition of a legacy property in Vancouver's most storied enclave

General Info

Price $5,998,000
Total Bedrooms 5
Total Bathrooms 6
Half Bathrooms 2
Floor Area Total (sqft) 5893
Lot Size 11563.75
Lot Size Depth Feet
Lot Size Frontage 92.51
Basement Finished
Basement Features BasementFeatures

Property Metrics

Year Built 2025
Age Of Building 0
Building Type Single Family Residence
Property Type Residential
Stories 2
Appliances Included Washer/Dryer, Dishwasher, Refrigerator, Stove, Freezer, Instant Hot Water, Range Top, Wine Cooler
Building Amenities Exercise Centre, Sauna/Steam Room
Building Features BuildingFeatures
Structures Residential Detached

Additional Details

MLS® # R3073549
Area Vancouver West
Neighbourhood Shaughnessy
City Vancouver
Gross Taxes $31,778.2
Ownership Type Freehold NonStrata
Maintenance Fee -
Community Features Shopping Nearby
Amenities Nearby Exercise Centre, Sauna/Steam Room

Heating & Cooling

Fireplace -
Heating Type Heat Pump, Natural Gas, Radiant
Cooling Central Air, Air Conditioning

Utilities

Utility Type Electricity Connected, Natural Gas Connected, Water Connected
Utility Sewer Public Sewer, Sanitary Sewer, Storm Sewer
Water (WaterSource) Public

Parking

Parking Type Garage Triple, Lane Access, Paver Block
Total Parking Spaces 3

🔒 Join or Sign In • Real estate boards need a verified account to see Property data

Strata Restrictions -
Rental Restrictions -
Zoning FSHCA
Rental Suites -
Laundry In Unit
# of Kitchens 2
Flooring Hardwood, Tile
Foundation Concrete Perimeter
Interior Features Elevator, Guest Suite, Storage, Central Vacuum
Locker -
View -
View Description -
Units In Development -
Exterior Features Garden, Balcony, Private Yard
Sewer Public Sewer, Sanitary Sewer, Storm Sewer
Roof Metal

Property History

🔒 Join or Sign In • Real estate boards need a verified account to see Property data

Status Date Price
Show more

Listed by: RE/MAX Select Properties & RE/MAX Select Properties

NOTE: This representation is based in whole or in part on data generated by the Chilliwack & District Real Estate Board, Fraser Valley Real Estate Board or Greater Vancouver REALTORS® which assumes no responsibility for its accuracy.

Neighborhood Info

Public Schools

Secondary
Prince of Wales Secondary School
1.13 km
Elementary
Shaughnessy Elementary School
Above Average
0.88 km
7.2/10

Information includes BC Government Open License data; school details change often and are offered solely as general guidance.

Private Schools

Elementary, Secondary
York House School
0.97 km
10/10
Excellent
Secondary
Little Flower Academy
0.96 km

Closest Transit

Bus Stop
Northbound Arbutus St @ W 20 Ave
0.12 km
Skytrain
Skytrain @ King Edward Stn
2.68 km

Noise/ Power Lines

Road/Hwy Noise
Possible
Railway/Sky train Noise
Unlikely
Airport/Port Noise
Unlikely
Close to major Power Lines
Unlikely

Other

Agricultural Land Reserve (ALR)
Unlikely
Flood Area
Unlikely
Close to Cemeteries
Unlikely

Welcome to 3455 Maple Street, Vancouver, BC - A Prime Location for the Discerning Buyer

As we step into the charming neighborhood of Shaughnessy, you'll discover a haven of tranquility and community spirit. This beautiful property, listed as MLS(R) R3073549, is nestled in the heart of it all, offering an unparalleled blend of comfort, convenience, and character.

Excellent Schools in the Neighborhood

One of the standout features of living in Shaughnessy is the access to top-notch schools. Our property at 3455 Maple Street is serviced by the highly-rated Shaughnessy Elementary School, with a rating of 7.2/10, just a short 0.88 km away. Additionally, Prince of Wales Secondary School, with a rating of No Rating, is located 1.13 km from the property, providing excellent secondary education options for families. For those seeking independent schooling, York House School, with a rating of 10/10, is conveniently located just 0.97 km from the property.

A Safe and Secure Community

When it comes to safety, we're pleased to report that the crime rate in the area is Average compared to other Canadian cities, according to Statistics Canada's 2020 report. With a crime rate of 7,470.82 and a year-over-year change of -14.94%, residents can feel confident and secure in their community. Additionally, the drug crime rate is Average, with a rating of Illegal substances offences at 229.49, and the property crime rate is Above Average, with a rating of 5,020.27.

Convenient Transit Options

Getting around the city is a breeze with multiple transit options nearby. The closest bus station, Northbound Arbutus St @ W 20 Ave, is just 0.12 km away from the property, making it an ideal location for commuters.

A Thriving Community with a Strong Economy

The community surrounding 3455 Maple Street is characterized by a diverse and educated population. A staggering 45.4% of residents hold a university certificate or degree, making it a High percentage compared to other BC neighborhoods. Additionally, the median household income is $85,504, which is Above Average compared to the British Columbia average. With a low unemployment rate of 5.5%, residents can feel confident about their financial prospects.

A Range of Housing Options and Affordability

The property at 3455 Maple Street offers a range of housing options, from single-family homes to apartments. With an average dwelling value of $2,644,355, this neighborhood is a popular choice for those seeking a more affluent lifestyle. However, with 13.9% of the population renting, there are options available for those on a budget.

A Community that Values Education and Family

The community surrounding 3455 Maple Street is family-friendly, with an average family size of 3.1 and a high percentage of families with children (73.2%). The area is also home to a diverse population, with 53.2% of residents being married or living common law, and an average age of 43.3 years, which is Above Average compared to other BC cities.

Easy Access to Amenities and Services

Residents of 3455 Maple Street enjoy easy access to a range of amenities and services, including parks, beaches, trails, dog parks, shopping malls, grocery stores, restaurants, and coffee shops. With an average owner payment of $2,208 and a high percentage of English speakers (81.3%), this community is a great choice for those seeking a convenient and comfortable lifestyle.

Invest in a Prime Location with MLS(R) R3073549

Don't miss this opportunity to invest in a prime location with MLS(R) R3073549. Contact me, your trusted local realtor, to schedule a viewing and make this property your dream home.

Located at 3455 Maple Street, Vancouver, BC, MLS(R) R3073549 is a must-see property that offers the perfect blend of comfort, convenience, and community spirit.

Local Info

Calculate your monthly mortgage payments

/month
Principal & Interest
Property Taxes $202
Maintenance fee 0
All figures are informational estimates by Estateblock.com; actual mortgage payments and insurance rates vary by many factors.

Cash Flow Analysis

/month
Mortgage Payment $3201
Monthly Payment $3802
Break Even Down Payment 0%
All figures are informational estimates by Estateblock.com; actual mortgage payments and insurance rates vary by many factors.

Price Evaluation Chart

Filter
Beds Home Types Square Feet Lot Size Year Built
This Home $5,998,000
Vancouver No comparables
Shaughnessy No comparables
Data is based on list prices of similar active listings. This representation is based in whole or in part on data generated by the Chilliwack & District Real Estate Board, Fraser Valley Real Estate Board or Real Estate Board of Greater Vancouver which assumes no responsibility for its accuracy

Listing Price Comparision

This house $1,400,000
Surrey

No comparables

Fleetwood Tynehead $1,399,000 -6.38%
Data is based on list prices of similar active listings. This representation is based in whole or in part on data generated by the Chilliwack & District Real Estate Board, Fraser Valley Real Estate Board or Real Estate Board of Greater Vancouver which assumes no responsibility for its accuracy
Dan Marusin
Dan Marusin
Renanza Realty
778-918-5990
Award-Winning REALTOR® with 11+ Years of Experience Serving Greater Vancouver

Earn Cashback

Potential Cashback for this listing if you buy with us

$0
out of $35,514
0 of 17 missions
(0.0% out of 100%)

Login to track your cashback progress

Sign up on Estateblock.com

$1,776 / 5.00%

Use the “Hot Deal” module on our website

$710 / 2.00%

Sign up for our Newsletter

$710 / 2.00%

Create a saved search on Estateblock.com

$1,065 / 3.00%

Book a Property Showing with us

$1,776 / 5.00%

Get a mortgage through one of our recommended brokers

$3,551 / 10.00%

Use our recommended insurance provider

$1,065 / 3.00%

Use our recommended notary for closing

$1,065 / 3.00%

Sign an Exclusive Buyer’s Agency Agreement with us

$3,551 / 10.00%

Share Estateblock.com on social media with a short intro

$1,065 / 3.00%

Refer a friend who successfully buys or sells with us

$7,103 / 20.00%

Sell your home with us

$7,103 / 20.00%

Leave a Public Review in Google

$1,776 / 5.00%

Follow us on Insta or FB and tag us in a post

$710 / 2.00%

Create a short video testimonial

$710 / 2.00%

Leave a Facebook review

$710 / 2.00%

Talk with one of our mortgage brokers

$1,065 / 3.00%

Similar nearby listings

1350 Palmerston Avenue, West Vancouver, BC
$5,580,000

1350 Palmerston Avenue, West Vancouver, BC

6 Beds
8 Baths
5471 sqft
2015 built
MLS® R3035496 , Sutton Group-West Coast Realty

Similar Sold listings

🔒 Join or Sign In • Real estate boards need a verified account to see photos & sold data

6188 Wiltshire Street, Vancouver, BC
Sold
$11,980,000

6188 Wiltshire Street, Vancouver, BC

6 Beds
7 Baths
5424 sqft
2022 built
MLS® R2910720 , Pacific Evergreen Realty Ltd. & Pacific Evergreen Realty Ltd.
1778 W 37th Avenue, Vancouver, BC
Sold
$11,388,000

1778 W 37th Avenue, Vancouver, BC

6 Beds
7 Baths
5912 sqft
2017 built
MLS® R2829254 , Pacific Evergreen Realty Ltd. & Pacific Evergreen Realty Ltd.
1765 Rosebery Avenue, West Vancouver, BC
Sold
$5,980,000

1765 Rosebery Avenue, West Vancouver, BC

6 Beds
7 Baths
6352 sqft
2019 built
MLS® R2900695 , Sutton Group-West Coast Realty
1470 Tyrol Road, West Vancouver, BC
Sold
$5,998,000

1470 Tyrol Road, West Vancouver, BC

6 Beds
7 Baths
6347 sqft
2016 built
MLS® R2844271 , Sutton Group-West Coast Realty
1093 Wolfe Avenue, Vancouver, BC
Sold
$9,998,000

1093 Wolfe Avenue, Vancouver, BC

6 Beds
7 Baths
5911 sqft
2020 built
MLS® R2904487 , Angell, Hasman & Associates Realty Ltd. & Angell, Hasman & Associates Realty Ltd.

Book a tour

Please complete the form. We will the arrangements and give you a call, typically within 1-2 hours. Or Call Us 778-918-5990
Thank you Your message has been sent
Go See This Home Now