6 1840 160 St, Surrey, BC, MLS® R3075336

$349,900
Est. Mortgage /mo

NEW OPEN HOUSE

$349,900
Est. Mortgage /mo
Dan Marusin
Dan Marusin
Renanza Realty
778-918-5990
Award-Winning REALTOR® with 11+ Years of Experience Serving Greater Vancouver
Go See This Home Now
3 Beds
1 Baths
1 Stories
lot 0 sqft
1152 sqft
1975 built
Show more info
Photos
Map
Street view
Schools
Crime
Commute
Shop & Eat

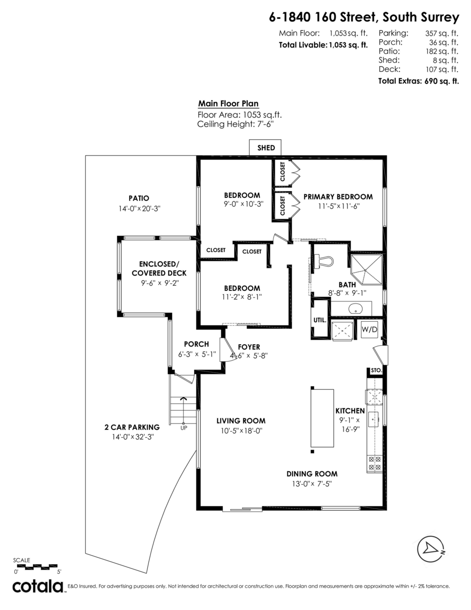
6 1840 160 St, Surrey, BC | MLS® R3075336 Property Details

Welcome Home to Breakaway Bays! Fall in love with this gorgeous 3-bedroom, 1-bath Double Wide, full of updates and charm and your very own Catio! Since 2018 — new roof, gutters, hot water tank, windows, doors, brand new kitchen and appliances, flooring, lighting — you name it, it’s done! New covered porch with tons of storage, plus lush gardens in a prime cul-de-sac location! Additional insulation throughout the undercarriage. Your community perks? Outdoor heated pool, clubhouse with library and pool table, loads of activities — all just minutes to the beach, shopping, golf, schools, transit, and the USA border. RV Parking available too! Electricity is included in the pad rent! Don’t miss this rare gem — book your showing today! Open House January 11 2-4pm

Open houses

11 Jan, 2026 (02:00 PM to 04:00 PM)

General Info

Price $349,900
Total Bedrooms 3
Total Bathrooms 1
Half Bathrooms 0
Floor Area Total (sqft) 1152
Lot Size -
Lot Size Depth -
Lot Size Frontage -
Basement None
Basement Features BasementFeatures

Property Metrics

Year Built 1975
Age Of Building 51
Building Type Manufactured Home
Property Type Residential
Stories 1
Building Amenities Clubhouse, Exercise Centre, Recreation Facilities, Electricity
Building Features BuildingFeatures
Structures Residential Detached, Manufactured House

Additional Details

MLS® # R3075336
Area South Surrey White Rock
Neighbourhood King George Corridor
City Surrey
Gross Taxes $1,100.33
Ownership Type Leasehold not prepaid-NonStrata
Maintenance Fee -
Amenities Nearby Clubhouse, Exercise Centre, Recreation Facilities, Electricity

Heating & Cooling

Fireplace -
Heating Type Forced Air, Natural Gas

Utilities

Utility Type Electricity Connected, Natural Gas Connected, Water Connected
Utility Sewer Public Sewer, Sanitary Sewer
Water (WaterSource) Public

Parking

Parking Type Carport Single, RV Access/Parking, Guest
Total Parking Spaces 2

🔒 Join or Sign In • Real estate boards need a verified account to see Property data

Strata Restrictions Pets Allowed w/Rest.
Pet Restrictions Cats OK, Dogs OK, Number Limit (Two), Yes With Restrictions
Rental Restrictions 100
Zoning MHP
Rental Suites -
# of Kitchens 1
Flooring Laminate, Vinyl
Foundation Slab
Locker -
View -
View Description -
Units In Development -
Exterior Features Balcony
Sewer Public Sewer, Sanitary Sewer
Roof Torch-On

Property History

🔒 Join or Sign In • Real estate boards need a verified account to see Property data

Status Date Price
Show more

Listed by: Macdonald Realty (Surrey/152)

NOTE: This representation is based in whole or in part on data generated by the Chilliwack & District Real Estate Board, Fraser Valley Real Estate Board or Greater Vancouver REALTORS® which assumes no responsibility for its accuracy.

Neighborhood Info

Public Schools

Elementary
South Meridian Elementary School
Average
0.84 km
6.5/10
Secondary
Earl Marriott Secondary School
0.72 km

Information includes BC Government Open License data; school details change often and are offered solely as general guidance.

Private Schools

Elementary, Secondary
Southridge School
1.88 km
10/10
Excellent
Elementary, Secondary
Southridge School
1.88 km
10/10
Excellent

Closest Transit

Bus Stop
Northbound King George Blvd @ 16 Ave
0.19 km
Skytrain
Skytrain @ Clayton Station ( Under Construction till 2029)
11.38 km

Noise/ Power Lines

Road/Hwy Noise
Possible
Railway/Sky train Noise
Unlikely
Airport/Port Noise
Unlikely
Close to major Power Lines
Unlikely

Other

Agricultural Land Reserve (ALR)
Unlikely
Flood Area
Unlikely
Close to Cemeteries
Unlikely

Welcome to 6 1840 160 Street in Surrey, BC, a vibrant community that offers the perfect blend of comfort, convenience, and lifestyle amenities. As we walk through the neighborhood, I'm excited to share with you the unique features that make this area so special.

First, let's talk about the schools. 6 1840 160 Street is serviced by South Meridian Elementary School, which has a rating of 6.5/10. The property is conveniently located just 0.84 km from the school, making it an ideal choice for families. You'll also find Earl Marriott Secondary School nearby, just 0.72 km away, with a rating of No Rating. If you're looking for a private school option, Southridge School is the closest elementary independent school, with a rating of 10/10, located 1.88 km from this home.

Now, let's talk about crime statistics. According to the latest data from Statistics Canada (2020), the overall crime rate near 6 1840 160 Street, Surrey, BC is 7,512.73, which is Average compared to other Canadian cities. However, the rate has decreased by 12.05% year-over-year. When it comes to drug crime, the rating is Above Average, with 390.7 incidents per 100,000 population in 2020. The property crime rate is Average, with 3,746.17 incidents per 100,000 population in 2020. Violent crime, on the other hand, is Below Average, with 1,310.25 incidents per 100,000 population in 2020.

Now, let's explore the demographics of the area. 20.9% of the population in this neighborhood have a university certificate/degree, which is Average compared to other BC neighborhoods. However, 14.6% of the population have no certificate or degree, which is Below Average. The median household income near this home is $80,567, which is Above Average compared to the British Columbia average. The median personal income is $38,272, also Above Average.

When it comes to transportation, the closest bus station is Northbound King George Blvd @ 16 Ave, just 0.19 km away from this listing with MLS® R3075336. With a population change of 6.3% between 2011 and 2016, this area is experiencing Above Average growth, making it an attractive option for investors and homebuyers alike.

The average age of the population in this area is 49.1, which is High compared to other BC cities. The average value of dwellings in this neighborhood is $793,907, which is High compared to other areas in British Columbia. Average owner payments are Average, with homeowners spending $1,254 on average for their dwelling. Tenants, on the other hand, are paying $1,306, which is Above Average.

As we walk through the neighborhood, you'll notice a mix of families and renters. 9.5% of the population in this area are renters, which is Low compared to other BC cities and areas. The majority of residents are English speakers, with 91.1% of the population speaking only English. Public transportation is used by 7.8% of the population, while 87.4% use cars, and 2.1% walk.

In conclusion, 6 1840 160 Street in Surrey, BC is a desirable community that offers a unique blend of comfort, convenience, and lifestyle amenities. With its Average crime rate, Above Average growth rate, and High average value of dwellings, this area is an attractive option for homebuyers and investors alike. As your trusted realtor, I'd be happy to guide you through the home buying process and help you find your dream home in this vibrant community.

Listing MLS® R3075336.

Local Info

Calculate your monthly mortgage payments

/month
Principal & Interest
Property Taxes $202
Maintenance fee 0
All figures are informational estimates by Estateblock.com; actual mortgage payments and insurance rates vary by many factors.

Cash Flow Analysis

/month
Mortgage Payment $3201
Monthly Payment $3802
Break Even Down Payment 0%
All figures are informational estimates by Estateblock.com; actual mortgage payments and insurance rates vary by many factors.

Price Evaluation Chart

Filter
Beds Home Types Square Feet Lot Size Year Built
This Home $349,900
Surrey $321,889
King George Corridor $377,167
Data is based on list prices of similar active listings. This representation is based in whole or in part on data generated by the Chilliwack & District Real Estate Board, Fraser Valley Real Estate Board or Real Estate Board of Greater Vancouver which assumes no responsibility for its accuracy

Listing Price Comparision

This house $1,400,000
Surrey

No comparables

Fleetwood Tynehead $1,399,000 -6.38%
Data is based on list prices of similar active listings. This representation is based in whole or in part on data generated by the Chilliwack & District Real Estate Board, Fraser Valley Real Estate Board or Real Estate Board of Greater Vancouver which assumes no responsibility for its accuracy
Dan Marusin
Dan Marusin
Renanza Realty
778-918-5990
Award-Winning REALTOR® with 11+ Years of Experience Serving Greater Vancouver

Earn Cashback

Potential Cashback for this listing if you buy with us

$0
out of $3,037
0 of 17 missions
(0.0% out of 100%)

Login to track your cashback progress

Sign up on Estateblock.com

$152 / 5.00%

Use the “Hot Deal” module on our website

$61 / 2.00%

Sign up for our Newsletter

$61 / 2.00%

Create a saved search on Estateblock.com

$91 / 3.00%

Book a Property Showing with us

$152 / 5.00%

Get a mortgage through one of our recommended brokers

$304 / 10.00%

Use our recommended insurance provider

$91 / 3.00%

Use our recommended notary for closing

$91 / 3.00%

Sign an Exclusive Buyer’s Agency Agreement with us

$304 / 10.00%

Share Estateblock.com on social media with a short intro

$91 / 3.00%

Refer a friend who successfully buys or sells with us

$607 / 20.00%

Sell your home with us

$607 / 20.00%

Leave a Public Review in Google

$152 / 5.00%

Follow us on Insta or FB and tag us in a post

$61 / 2.00%

Create a short video testimonial

$61 / 2.00%

Leave a Facebook review

$61 / 2.00%

Talk with one of our mortgage brokers

$91 / 3.00%

Similar nearby listings

60 2270 196 Street, Langley, BC
$239,900

60 2270 196 Street, Langley, BC

2 Beds
1 Baths
1086 sqft
1979 built
MLS® R3072006 , Macdonald Realty (Surrey/152) & Macdonald Realty (Surrey/152)
4 2315 198 Street, Langley, BC
$375,000

4 2315 198 Street, Langley, BC

3 Beds
2 Baths
1536 sqft
1985 built
MLS® R3071838 , Royal Lepage Wheeler Cheam
226 20071 24 Avenue, Langley, BC
$328,000

226 20071 24 Avenue, Langley, BC

3 Beds
2 Baths
1438 sqft
1986 built
MLS® R3062788 , eXp Realty of Canada, Inc.
92 20071 24 Avenue, Langley, BC
$329,900

92 20071 24 Avenue, Langley, BC

2 Beds
2 Baths
1248 sqft
1980 built
MLS® R3062952 , Real Broker B.C. Ltd.
120 3031 200 Street, Langley, BC
$259,800

120 3031 200 Street, Langley, BC

3 Beds
2 Baths
1152 sqft
1974 built
MLS® R3063821 , Royal LePage West Real Estate Services
48 20071 24 Avenue, Langley, BC
$189,000

48 20071 24 Avenue, Langley, BC

2 Beds
1 Baths
994 sqft
1968 built
MLS® R3050731 , Royal LePage - Wolstencroft
79 1840 160 Street, Surrey, BC
$199,900

79 1840 160 Street, Surrey, BC

2 Beds
1 Baths
768 sqft
1975 built
MLS® R3044731 , Royal LePage West Real Estate Services
235 1840 160 Street, Surrey, BC
$179,000

235 1840 160 Street, Surrey, BC

2 Beds
1 Baths
860 sqft
1975 built
MLS® R3052978 , Royal LePage West Real Estate Services
233 1840 160 Street, Surrey, BC
$394,900

233 1840 160 Street, Surrey, BC

2 Beds
2 Baths
1014 sqft
1974 built
MLS® R3023504 , Macdonald Realty (Surrey/152)
49 20071 24 Avenue, Langley, BC
$199,900

49 20071 24 Avenue, Langley, BC

2 Beds
2 Baths
842 sqft
1968 built
MLS® R3031147 , One Percent Realty Ltd. & One Percent Realty Ltd.

Similar Sold listings

🔒 Join or Sign In • Real estate boards need a verified account to see photos & sold data

11 2306 198 Street, Langley, BC
Sold
$274,900

11 2306 198 Street, Langley, BC

3 Beds
2 Baths
1475 sqft
1980 built
MLS® R3020377 , Greyfriars Realty Ltd.
140 1840 160 Street, Surrey, BC
Sold
$359,000

140 1840 160 Street, Surrey, BC

3 Beds
1 Baths
1042 sqft
1974 built
MLS® R2799410 , Homelife Benchmark Realty Corp.
88 2315 198 Street, Langley, BC
Sold
$214,900

88 2315 198 Street, Langley, BC

2 Beds
1 Baths
924 sqft
1984 built
MLS® R2938940 , Homelife Benchmark Realty (Langley) Corp.
125 1840 160 Street, Surrey, BC
Sold
$128,800

125 1840 160 Street, Surrey, BC

2 Beds
1 Baths
701 sqft
1974 built
MLS® R3060978 , Royal LePage Global Force Realty
203 1840 160 Street, White Rock, BC
Sold
$199,900

203 1840 160 Street, White Rock, BC

2 Beds
2 Baths
888 sqft
1975 built
MLS® R2978284 , Stonehaus Realty Corp.
14 3031 200 Street, Langley, BC
Sold
$169,800

14 3031 200 Street, Langley, BC

2 Beds
1 Baths
824 sqft
1971 built
MLS® R2802230 , Royal LePage West Real Estate Services
226 1840 160 Street, Surrey, BC
Sold
$289,900

226 1840 160 Street, Surrey, BC

2 Beds
2 Baths
872 sqft
1974 built
MLS® R2781209 , Sutton Group Seafair Realty
86 1840 160 Street, Surrey, BC
Sold
$339,999

86 1840 160 Street, Surrey, BC

3 Beds
2 Baths
990 sqft
1976 built
MLS® R2940156 , Stonehaus Realty Corp.
59 1840 160 Street, Surrey, BC
Sold
$299,900

59 1840 160 Street, Surrey, BC

3 Beds
1 Baths
1063 sqft
1973 built
MLS® R2835304 , Macdonald Realty (Langley)
130 1840 160 Street, Surrey, BC
Sold
$249,000

130 1840 160 Street, Surrey, BC

1 Beds
1 Baths
864 sqft
1973 built
MLS® R2815055 , Homelife Benchmark Realty Corp.

Book a tour

Please complete the form. We will the arrangements and give you a call, typically within 1-2 hours. Or Call Us 778-918-5990
Thank you Your message has been sent
Go See This Home Now