601 1930 Marine Dr, West Vancouver, BC, MLS® R3080379

$754,000
Est. Mortgage /mo

$754,000
Est. Mortgage /mo
Dan Marusin
Dan Marusin
Renanza Realty
778-918-5990
Award-Winning REALTOR® with 11+ Years of Experience Serving Greater Vancouver
Go See This Home Now
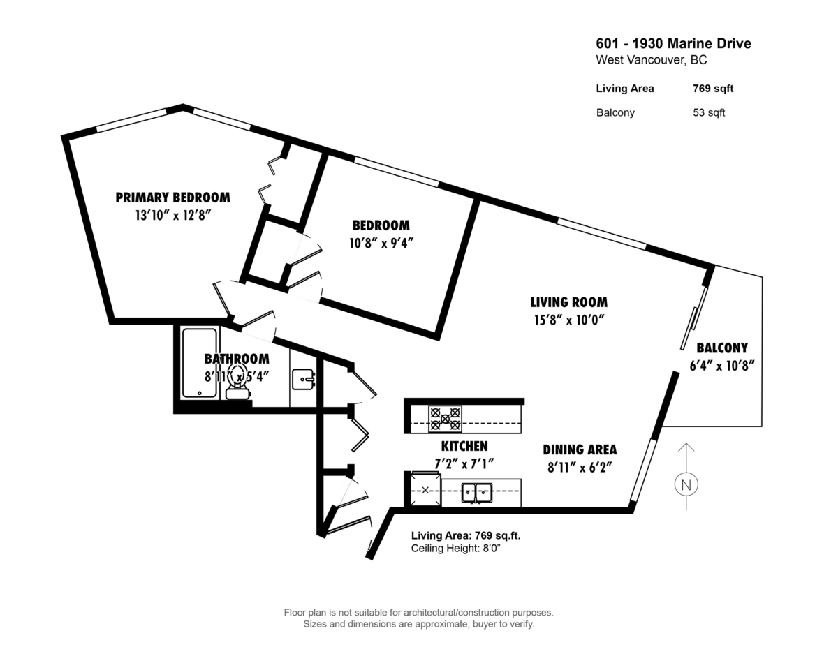
2 Beds
1 Baths
1 Stories
$ 550 Maint. Fee
769 sqft
1964 built
Show more info
Photos
Map
Street view
Schools
Crime
Commute
Shop & Eat

601 1930 Marine Dr, West Vancouver, BC | MLS® R3080379 Property Details

Fabulous West Van location across from Memorial Park and within walking distance to shopping, amenities, and the seawall. Great investment property with excellent tenants in place who would like to stay. The unit is in original condition but it makes up for it with a great location. It offers two bedrooms with a lovely easterly exposure to the Lions Gate Bridge. Notice is required for all showings. Contact your Investors today.

General Info

Price $754,000
Total Bedrooms 2
Total Bathrooms 1
Half Bathrooms 0
Floor Area Total (sqft) 769
Lot Size -
Lot Size Depth -
Lot Size Frontage -
Basement None
Basement Features BasementFeatures

Property Metrics

Year Built 1964
Age Of Building 62
Building Type Apartment/Condo
Property Type Residential
Stories 1
Appliances Included Dishwasher, Refrigerator, Stove
Building Amenities Trash, Maintenance Grounds, Heat, Hot Water, Management
Building Features BuildingFeatures
Structures Multi Family, Residential Attached

Additional Details

MLS® # R3080379
Area West Vancouver
Neighbourhood Ambleside
City West Vancouver
Gross Taxes $1,850
Ownership Type Freehold Strata
Maintenance Fee $550
Community Features Shopping Nearby
Amenities Nearby Trash, Maintenance Grounds, Heat, Hot Water, Management
Fixtures Included -

Heating & Cooling

Fireplace -
Heating Type Baseboard, Electric

Utilities

Utility Type Electricity Connected, Natural Gas Connected, Water Connected
Utility Sewer Public Sewer, Sanitary Sewer, Storm Sewer
Water (WaterSource) Public

Parking

Parking Type Carport Single, Side Access
Total Parking Spaces 1

🔒 Join or Sign In • Real estate boards need a verified account to see Property data

Strata Restrictions Pets Not Allowed,Rentals Allowed,Smoking Restrictions
Pet Restrictions No
Rental Restrictions -
Zoning MFD
Rental Suites -
Laundry Common Area
# of Kitchens 1
Flooring Hardwood
Foundation Concrete Perimeter
Interior Features Elevator
Locker 1
View 1
View Description N/East with some water view
Units In Development 44
Exterior Features Balcony
Sewer Public Sewer, Sanitary Sewer, Storm Sewer
Roof Torch-On

Property History

🔒 Join or Sign In • Real estate boards need a verified account to see Property data

Status Date Price
Show more

Listed by: RE/MAX Masters Realty & RE/MAX Masters Realty

NOTE: This representation is based in whole or in part on data generated by the Chilliwack & District Real Estate Board, Fraser Valley Real Estate Board or Greater Vancouver REALTORS® which assumes no responsibility for its accuracy.

Neighborhood Info

Private Schools

Elementary
St. Anthony's
2.37 km
9.5/10
Excellent
Elementary, Secondary
Collingwood School
2.56 km

Closest Transit

Bus Stop
Westbound Marine Dr @ 19 St
0.03 km
Skytrain
Skytrain @ Burrard Stn
5.80 km

Noise/ Power Lines

Road/Hwy Noise
Possible
Railway/Sky train Noise
Unlikely
Airport/Port Noise
Unlikely
Close to major Power Lines
Unlikely

Other

Agricultural Land Reserve (ALR)
Unlikely
Flood Area
Unlikely
Close to Cemeteries
Unlikely

Welcome to Ambleside, West Vancouver: A Charming Community for All Ages

As we walk through the beautiful streets of Ambleside, you'll notice the tranquil atmosphere and stunning ocean views. The real estate listing at 601 1930 Marine Drive, West Vancouver, BC (MLS® R3080379) is a perfect example of this community's charm. Let's explore the neighborhood's highlights and what makes it an ideal place to call home.

Education: St. Anthony's Elementary School - A Top Choice for Families

Just down the road from the property at 601 1930 Marine Drive, West Vancouver, BC, you'll find St. Anthony's Elementary School, rated 9.5/10. This highly-rated school is located within a 2.37 km radius, making it an excellent option for families. With its strong educational programs and supportive community, St. Anthony's is a top choice for parents seeking a well-rounded education for their children.

Safety: Low Crime Rates in Ambleside

According to the latest crime statistics from Statistics Canada (2020), the area surrounding 601 1930 Marine Drive, West Vancouver, BC has a low crime rate of 4,969.41 incidents per 100,000 population. This is significantly lower than the national average, providing residents with peace of mind and a sense of security. Additionally, the property crime rate is average, with a rating of 3,165.63 incidents per 100,000 population.

Demographics: A Community of Educated Professionals

The neighborhood surrounding the real estate listing at 601 1930 Marine Drive, West Vancouver, BC is characterized by a highly educated population, with 41.3% of residents holding a university certificate or degree. This is significantly higher than the provincial average, indicating a community of professionals who value education and personal growth.

Transit: Convenient Public Transportation

The property at 601 1930 Marine Drive, West Vancouver, BC is conveniently located near public transportation, including the Westbound Marine Dr @ 19 St bus station, just 0.03 km away. This provides easy access to surrounding areas and major highways, making it an ideal location for commuters.

Lifestyle Amenities: Parks, Beaches, and Trails

Ambleside offers a range of lifestyle amenities, including parks, beaches, and trails that cater to outdoor enthusiasts. The area is perfect for nature lovers, with easy access to the ocean and surrounding mountains. Residents can also enjoy the local shopping mall, grocery stores, restaurants, and coffee shops, providing a convenient and vibrant community experience.

Real Estate Context: Affordable Housing Options

The average dwelling value in the area surrounding 601 1930 Marine Drive, West Vancouver, BC is $1,610,414, which is significantly higher than the provincial average. However, the average owner payments are above average, with owners spending $1,544 on average for their dwellings. Tenants, on the other hand, pay $1,831, which is higher than the provincial average.

Community Profile: A Mix of Families and Professionals

The community surrounding the real estate listing at 601 1930 Marine Drive, West Vancouver, BC is characterized by a mix of families and professionals. The average family size is 2.4, which is lower than the provincial average. The percentage of families with children is 35.3%, which is also lower than the provincial average. The average age of the population is 62.2, which is higher than the provincial average.

In conclusion, the neighborhood surrounding 601 1930 Marine Drive, West Vancouver, BC is a charming community that offers a range of amenities, including excellent education options, low crime rates, and convenient public transportation. With its mix of families and professionals, this community is an ideal place to call home for those seeking a peaceful and vibrant living experience.

Local Info

Calculate your monthly mortgage payments

/month
Principal & Interest
Property Taxes $202
Maintenance fee 0
All figures are informational estimates by Estateblock.com; actual mortgage payments and insurance rates vary by many factors.

Cash Flow Analysis

/month
Mortgage Payment $3201
Monthly Payment $3802
Break Even Down Payment 0%
All figures are informational estimates by Estateblock.com; actual mortgage payments and insurance rates vary by many factors.

Price Evaluation Chart

Filter
Beds Home Types Square Feet Lot Size Year Built
This Home $754,000
West Vancouver $623,500
Ambleside $623,500
Data is based on list prices of similar active listings. This representation is based in whole or in part on data generated by the Chilliwack & District Real Estate Board, Fraser Valley Real Estate Board or Real Estate Board of Greater Vancouver which assumes no responsibility for its accuracy

Listing Price Comparision

This house $1,400,000
Surrey

No comparables

Fleetwood Tynehead $1,399,000 -6.38%
Data is based on list prices of similar active listings. This representation is based in whole or in part on data generated by the Chilliwack & District Real Estate Board, Fraser Valley Real Estate Board or Real Estate Board of Greater Vancouver which assumes no responsibility for its accuracy
Dan Marusin
Dan Marusin
Renanza Realty
778-918-5990
Award-Winning REALTOR® with 11+ Years of Experience Serving Greater Vancouver

Earn Cashback

Potential Cashback for this listing if you buy with us

$0
out of $5,361
0 of 17 missions
(0.0% out of 100%)

Login to track your cashback progress

Sign up on Estateblock.com

$268 / 5.00%

Use the “Hot Deal” module on our website

$107 / 2.00%

Sign up for our Newsletter

$107 / 2.00%

Create a saved search on Estateblock.com

$161 / 3.00%

Book a Property Showing with us

$268 / 5.00%

Get a mortgage through one of our recommended brokers

$536 / 10.00%

Use our recommended insurance provider

$161 / 3.00%

Use our recommended notary for closing

$161 / 3.00%

Sign an Exclusive Buyer’s Agency Agreement with us

$536 / 10.00%

Share Estateblock.com on social media with a short intro

$161 / 3.00%

Refer a friend who successfully buys or sells with us

$1,072 / 20.00%

Sell your home with us

$1,072 / 20.00%

Leave a Public Review in Google

$268 / 5.00%

Follow us on Insta or FB and tag us in a post

$107 / 2.00%

Create a short video testimonial

$107 / 2.00%

Leave a Facebook review

$107 / 2.00%

Talk with one of our mortgage brokers

$161 / 3.00%

Similar nearby listings

104 252 W 2nd Street, North Vancouver, BC
$675,000

104 252 W 2nd Street, North Vancouver, BC

2 Beds
1 Baths
832 sqft
1974 built
MLS® R3036161 , Royal Pacific Lions Gate Realty Ltd.
1404 2008 Fullerton Avenue, North Vancouver, BC
$599,000

1404 2008 Fullerton Avenue, North Vancouver, BC

2 Beds
1 Baths
906 sqft
1977 built
MLS® R3074807 , Oakwyn Realty Ltd.
302 540 Lonsdale Avenue, North Vancouver, BC
$789,000

302 540 Lonsdale Avenue, North Vancouver, BC

2 Beds
2 Baths
918 sqft
1974 built
MLS® R3079941 , eXp Realty
102 2246 Bellevue Avenue, West Vancouver, BC
$2,139,000

102 2246 Bellevue Avenue, West Vancouver, BC

2 Beds
2 Baths
1142 sqft
1966 built
MLS® R3066152 , Royal LePage Sussex - Tom Hassan
911 2016 Fullerton Avenue, North Vancouver, BC
$589,999

911 2016 Fullerton Avenue, North Vancouver, BC

2 Beds
2 Baths
953 sqft
1977 built
MLS® R3072514 , Oakwyn Realty Ltd. & Oakwyn Realty Northwest
508 2020 Fullerton Avenue, North Vancouver, BC
$569,000

508 2020 Fullerton Avenue, North Vancouver, BC

2 Beds
2 Baths
965 sqft
1975 built
MLS® R3064103 , Team 3000 Realty Ltd.
102 2016 Fullerton Avenue, North Vancouver, BC
$664,900

102 2016 Fullerton Avenue, North Vancouver, BC

2 Beds
2 Baths
944 sqft
1975 built
MLS® R3059946 , Macdonald Realty
102 1266 W 13th Avenue, Vancouver, BC
$929,000

102 1266 W 13th Avenue, Vancouver, BC

2 Beds
2 Baths
1093 sqft
1975 built
MLS® R3079659 , Macdonald Realty
303 1545 E 2nd Avenue, Vancouver, BC
$419,000

303 1545 E 2nd Avenue, Vancouver, BC

1 Beds
1 Baths
435 sqft
1976 built
MLS® R3079367 , eXp Realty
303 1717 W 13th Avenue, Vancouver, BC
$435,000

303 1717 W 13th Avenue, Vancouver, BC

0 Beds
1 Baths
430 sqft
1971 built
MLS® R3079180 , Oracle Realty Ltd.

Similar Sold listings

🔒 Join or Sign In • Real estate boards need a verified account to see photos & sold data

218 1445 Marpole Avenue, Vancouver, BC
Sold
$885,000

218 1445 Marpole Avenue, Vancouver, BC

2 Beds
1 Baths
838 sqft
1952 built
MLS® R2821570 , Blu Realty
105 2187 Bellevue Avenue, West Vancouver, BC
Sold
$557,000

105 2187 Bellevue Avenue, West Vancouver, BC

1 Beds
1 Baths
600 sqft
1971 built
MLS® R2931700 , FaithWilson Christies International Real Estate
607 1405 W 15th Avenue, Vancouver, BC
Sold
$589,000

607 1405 W 15th Avenue, Vancouver, BC

1 Beds
1 Baths
659 sqft
1977 built
MLS® R3001349 , Dexter Realty
201 250 W 1st Street, North Vancouver, BC
Sold
$565,000

201 250 W 1st Street, North Vancouver, BC

1 Beds
1 Baths
710 sqft
1976 built
MLS® R2865270 , eXp Realty & eXp Realty
311 2255 W 5th Avenue, Vancouver, BC
Sold
$575,000

311 2255 W 5th Avenue, Vancouver, BC

1 Beds
1 Baths
618 sqft
1974 built
MLS® R2859719 , Century 21 In Town Realty
302 2211 W 5th Avenue, Vancouver, BC
Sold
$650,000

302 2211 W 5th Avenue, Vancouver, BC

1 Beds
1 Baths
628 sqft
1967 built
MLS® R2821219 , Keller Williams Realty VanCentral
808 1333 Hornby Street, Vancouver, BC
Sold
$485,000

808 1333 Hornby Street, Vancouver, BC

1 Beds
1 Baths
523 sqft
1979 built
MLS® R3066456 , Multiple Realty Ltd.
913 950 Drake Street, Vancouver, BC
Sold
$399,900

913 950 Drake Street, Vancouver, BC

0 Beds
1 Baths
480 sqft
1977 built
MLS® R2895342 , RE/MAX Select Realty
303 440 E 5th Avenue, Vancouver, BC
Sold
$575,000

303 440 E 5th Avenue, Vancouver, BC

1 Beds
1 Baths
595 sqft
1973 built
MLS® R2817689 , Macdonald Realty
604 2135 Argyle Avenue, West Vancouver, BC
Sold
$769,000

604 2135 Argyle Avenue, West Vancouver, BC

1 Beds
1 Baths
810 sqft
1961 built
MLS® R2822450 , Keller Williams Realty VanCentral

Book a tour

Please complete the form. We will the arrangements and give you a call, typically within 1-2 hours. Or Call Us 778-918-5990
Thank you Your message has been sent
Go See This Home Now