TH8 324 E Ridgeway Ave, North Vancouver, BC, MLS® R3080391

$1,199,000
Est. Mortgage /mo

NEW OPEN HOUSE

$1,199,000
Est. Mortgage /mo
Dan Marusin
Dan Marusin
Renanza Realty
778-918-5990
Award-Winning REALTOR® with 11+ Years of Experience Serving Greater Vancouver
Go See This Home Now
3 Beds
3 Baths
3 Stories
$ 331.25 Maint. Fee
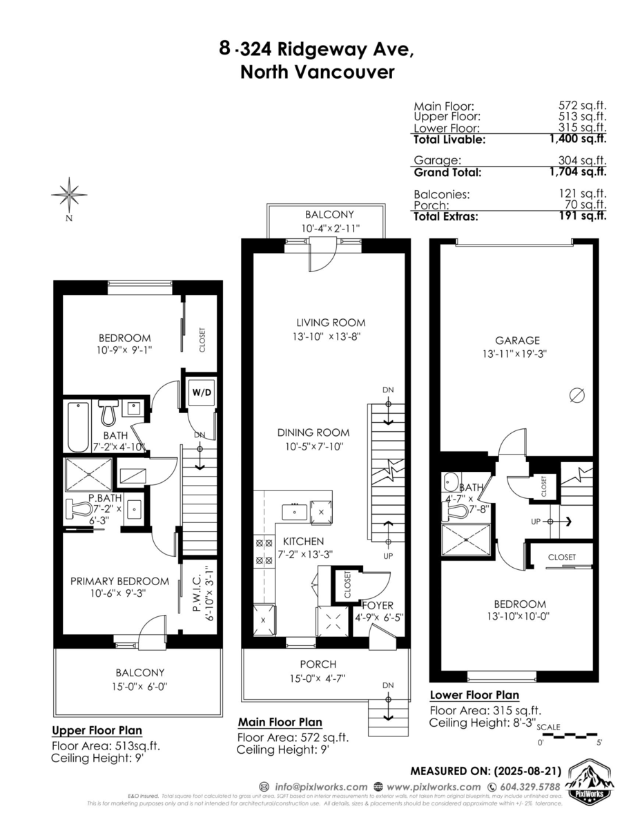
1400 sqft
2025 built
Show more info
Photos
Map
Street view
Schools
Crime
Commute
Shop & Eat

TH8 324 E Ridgeway Ave, North Vancouver, BC | MLS® R3080391 Property Details

Welcome to THE LINDEN — a boutique collection of 10 modern townhomes in the heart of Moodyville with only 4 homes remaining, ranging from 1,400 – 1,682 sq. ft., these townhomes are thoughtfully designed by Cornerstone Architects and built to the Passive House Standard, keeping energy bills low and comfort high. This home includes a lock-off studio suite perfect as a mortgage helper, guest space, or private office. Inside, you’ll find expansive windows that fill the home with natural light, a balcony off the primary bedroom for your morning coffee, and premium finishes with high-quality appliances throughout. Located just minutes from the Lower Lonsdale Quay, you’ll be steps from shops, restaurants, and fitness centres, with city views and North Shore trails right at your doorstep.

Open houses

18 Jan, 2026 (01:00 PM to 03:00 PM)

General Info

Price $1,199,000
Total Bedrooms 3
Total Bathrooms 3
Half Bathrooms 0
Floor Area Total (sqft) 1400
Lot Size -
Lot Size Depth -
Lot Size Frontage -
Basement None
Basement Features BasementFeatures

Property Metrics

Year Built 2025
Age Of Building 1
Building Type Townhouse
Property Type Residential
Architecture Style 3 Storey
Stories 3
Appliances Included Washer/Dryer, Dishwasher, Refrigerator, Stove
Building Amenities Trash, Hot Water, Management, Snow Removal
Building Features BuildingFeatures
Structures Residential Attached

Additional Details

MLS® # R3080391
Area North Vancouver
Neighbourhood Lower Lonsdale
City North Vancouver
Gross Taxes 0
Ownership Type Freehold Strata
Maintenance Fee $331.25
Community Features Shopping Nearby
Amenities Nearby Trash, Hot Water, Management, Snow Removal

Heating & Cooling

Fireplace 0
Heating Type Forced Air, Heat Pump
Cooling Central Air

Utilities

Utility Type Electricity Connected, Water Connected
Utility Sewer Public Sewer, Sanitary Sewer, Storm Sewer
Water (WaterSource) Public

Parking

Parking Type Garage Single, Lane Access, Garage Door Opener
Total Parking Spaces 1

🔒 Join or Sign In • Real estate boards need a verified account to see Property data

Strata Restrictions Pets Allowed,Rentals Allowed
Pet Restrictions Cats OK, Number Limit (Two), Yes
Rental Restrictions -
Zoning RG-3
Rental Suites None
Laundry In Unit
# of Kitchens 1
Flooring Hardwood, Tile
Foundation Concrete Perimeter
Locker -
View Description -
Units In Development 10
Sewer Public Sewer, Sanitary Sewer, Storm Sewer
Roof Torch-On

Property History

🔒 Join or Sign In • Real estate boards need a verified account to see Property data

Status Date Price
Show more

Listed by: Engel & Volkers Vancouver

NOTE: This representation is based in whole or in part on data generated by the Chilliwack & District Real Estate Board, Fraser Valley Real Estate Board or Greater Vancouver REALTORS® which assumes no responsibility for its accuracy.

Neighborhood Info

Private Schools

Elementary, Secondary
St. Alcuin College for the Liberal Arts
1.03 km
Elementary, Secondary
St. Alcuin College for the Liberal Arts
1.03 km

Closest Transit

Bus Stop
Eastbound E 3rd St @ Ridgeway Ave
0.08 km
Skytrain
Seabus Station @ Lonsdale Quay
1.48 km

Noise/ Power Lines

Road/Hwy Noise
Possible
Railway/Sky train Noise
Unlikely
Airport/Port Noise
Unlikely
Close to major Power Lines
Unlikely

Other

Agricultural Land Reserve (ALR)
Unlikely
Flood Area
Unlikely
Close to Cemeteries
Unlikely

Welcome to the charming neighborhood of Lower Lonsdale in North Vancouver, BC!

As we walk through this vibrant community, you'll find plenty of reasons to love living here. Let me take you on a tour of the area and highlight some of its best features.

Education

Just down the road from TH8 324 E Ridgeway Avenue, you'll find St. Alcuin College for the Liberal Arts, an excellent Elementary and Secondary independent school with a No Rating. Located just 1.03 km from this beautiful home, it's an ideal choice for families. With a strong focus on liberal arts education, your children will thrive in a supportive and engaging environment.

Safety

According to the latest crime statistics from Statistics Canada (2020), this neighborhood has an Average crime rate compared to other Canadian cities. With 4,450 reported disturbances, you can feel safe and secure in this community. The overall crime rate near TH8 324 E Ridgeway Avenue, North Vancouver, BC is 7,462.69, which is Average. Additionally, the year-by-year change in total crime rate is -4.31%, indicating a downward trend.

Drug Crime

When it comes to drug crime, this neighborhood is Below Average compared to other areas. With a rating of 157.64 and 94 reported incidents in 2020, you can rest assured that this community is committed to keeping its residents safe. The year-by-year change in the illegal substances offences ranking is -12.26%, showing a significant decrease in this area.

Property Crime

Unfortunately, property crime is Above Average in this neighborhood. With a rating of 3,868.86 and 2,307 reported incidents in 2020, it's essential to take normal precautions to secure your home. However, the year-by-year change in the property misconduct rate is -1.56%, indicating a slight decrease.

Violent Crime

Gladly, violent crime is Below Average in this area. With 687 reported incidents in 2020 and a rate of 1,152.10, you can feel confident in the neighborhood's safety. The year-by-year change in the violent crime rate is -4.62%, showing a downward trend.

Transit

Convenience is key, and this neighborhood offers easy access to public transportation. The closest Bus station is Eastbound E 3rd St @ Ridgeway Ave, just 0.08 km away from TH8 324 E Ridgeway Avenue, MLS® R3080391. With regular bus services, you can easily get around the city.

Demographics

Let's take a look at the demographics of this charming neighborhood. With 31.8% of the population holding a university certificate or degree, this area is Above Average in comparison to other BC neighborhoods. Additionally, 8.3% of the population has no certificate or degree, which is Low compared to the average in BC.

Income

The median household income near TH8 324 E Ridgeway Avenue, North Vancouver, BC is $75,315, which is Average compared to the British Columbia average. However, the median personal income is $38,115, which is Above Average. Moreover, 65% of households in this area have a mortgage, which is Above Average.

Unemployment

Unemployment rates are Low in this area, with a rate of 4.8% compared to other province neighborhoods.

Population Growth

The population change between 2011 and 2016 was 5.7%, which is Above Average in comparison to the average growth rate of this region.

Population Density

With a population density of Pel/pel 2,520.6 per square kilometer, this area is Above Average.

Family Structure

The average family size in this area is 2.8, which is Below Average. However, 58.2% of families have children, which is Average. Additionally, 54.7% of the population is married or living in a common-law relationship, which is Below Average.

Age

The average age of the population near TH8 324 E Ridgeway Avenue is 40.5, which is Average compared to other BC cities.

Housing

The average value of dwellings in this neighborhood is $963,515, which is High compared to other areas in British Columbia. Average owner payments are High, with owners spending $1,744 on average. Tenants are paying $1,364, which is also High.

Renters

46.2% of the population in this area are renters, which is Above Average compared to other BC cities and areas.

Language

9.9% of the population near TH8 324 E Ridgeway Avenue, North Vancouver, BC speak both English and French, which is Above Average. Additionally, 89.1

Local Info

Calculate your monthly mortgage payments

/month
Principal & Interest
Property Taxes $202
Maintenance fee 0
All figures are informational estimates by Estateblock.com; actual mortgage payments and insurance rates vary by many factors.

Cash Flow Analysis

/month
Mortgage Payment $3201
Monthly Payment $3802
Break Even Down Payment 0%
All figures are informational estimates by Estateblock.com; actual mortgage payments and insurance rates vary by many factors.

Price Evaluation Chart

Filter
Beds Home Types Square Feet Lot Size Year Built
This Home $1,199,000
North Vancouver $1,310,830
Lower Lonsdale $1,276,408
Data is based on list prices of similar active listings. This representation is based in whole or in part on data generated by the Chilliwack & District Real Estate Board, Fraser Valley Real Estate Board or Real Estate Board of Greater Vancouver which assumes no responsibility for its accuracy

Listing Price Comparision

This house $1,400,000
Surrey

No comparables

Fleetwood Tynehead $1,399,000 -6.38%
Data is based on list prices of similar active listings. This representation is based in whole or in part on data generated by the Chilliwack & District Real Estate Board, Fraser Valley Real Estate Board or Real Estate Board of Greater Vancouver which assumes no responsibility for its accuracy
Dan Marusin
Dan Marusin
Renanza Realty
778-918-5990
Award-Winning REALTOR® with 11+ Years of Experience Serving Greater Vancouver

Earn Cashback

Potential Cashback for this listing if you buy with us

$0
out of $7,919
0 of 17 missions
(0.0% out of 100%)

Login to track your cashback progress

Sign up on Estateblock.com

$396 / 5.00%

Use the “Hot Deal” module on our website

$158 / 2.00%

Sign up for our Newsletter

$158 / 2.00%

Create a saved search on Estateblock.com

$238 / 3.00%

Book a Property Showing with us

$396 / 5.00%

Get a mortgage through one of our recommended brokers

$792 / 10.00%

Use our recommended insurance provider

$238 / 3.00%

Use our recommended notary for closing

$238 / 3.00%

Sign an Exclusive Buyer’s Agency Agreement with us

$792 / 10.00%

Share Estateblock.com on social media with a short intro

$238 / 3.00%

Refer a friend who successfully buys or sells with us

$1,584 / 20.00%

Sell your home with us

$1,584 / 20.00%

Leave a Public Review in Google

$396 / 5.00%

Follow us on Insta or FB and tag us in a post

$158 / 2.00%

Create a short video testimonial

$158 / 2.00%

Leave a Facebook review

$158 / 2.00%

Talk with one of our mortgage brokers

$238 / 3.00%

Similar nearby listings

3 115 W Queens Road, North Vancouver, BC
$1,578,000

3 115 W Queens Road, North Vancouver, BC

3 Beds
3 Baths
2070 sqft
2019 built
MLS® R2985868 , RE/MAX Elevate Realty & RE/MAX Elevate Realty
2063 W 10th Avenue, Vancouver, BC
NEW
$1,399,000

2063 W 10th Avenue, Vancouver, BC

2 Beds
3 Baths
1254 sqft
2017 built
MLS® R3078192 , RE/MAX Select Properties
3914 Dumfries Street, Vancouver, BC
NEW Open House
$1,358,000

3914 Dumfries Street, Vancouver, BC

3 Beds
3 Baths
1451 sqft
2023 built
MLS® R3078768 , Angell, Hasman & Associates Realty Ltd. & Angell, Hasman & Associates Realty Ltd.
611 1500 Fern Street, North Vancouver, BC
NEW
$1,349,000

611 1500 Fern Street, North Vancouver, BC

2 Beds
3 Baths
1325 sqft
2024 built
MLS® R3078928 , Sutton Group-West Coast Realty
110 952 Lytton Street, North Vancouver, BC
$1,299,900

110 952 Lytton Street, North Vancouver, BC

3 Beds
2 Baths
1393 sqft
2026 built
MLS® R3065289 , Anthem Realty Ltd.
115 950 Lytton Street, North Vancouver, BC
$1,389,900

115 950 Lytton Street, North Vancouver, BC

3 Beds
3 Baths
1378 sqft
2026 built
MLS® R3065299 , Anthem Realty Ltd.
2377 W 7th Avenue, Vancouver, BC
$2,225,880

2377 W 7th Avenue, Vancouver, BC

2 Beds
4 Baths
1607 sqft
2024 built
MLS® R3060867 , eXp Realty
TH4 423 6th Street, West Vancouver, BC
$2,509,900

TH4 423 6th Street, West Vancouver, BC

3 Beds
3 Baths
1575 sqft
2025 built
MLS® R3059892 , Unilife Realty Inc.
TH13 108 E 8th Street, North Vancouver, BC
$1,299,000

TH13 108 E 8th Street, North Vancouver, BC

2 Beds
2 Baths
1078 sqft
2021 built
MLS® R3049836 , Macdonald Realty
4170 Columbia Street, Vancouver, BC
$1,799,000

4170 Columbia Street, Vancouver, BC

3 Beds
3 Baths
1381 sqft
2024 built
MLS® R3077538 , Oakwyn Realty Ltd.

Similar Sold listings

🔒 Join or Sign In • Real estate boards need a verified account to see photos & sold data

203 239 E 16th Avenue, Vancouver, BC
Sold
$2,999,000

203 239 E 16th Avenue, Vancouver, BC

4 Beds
3 Baths
2188 sqft
2024 built
MLS® R3001420 , Stilhavn Real Estate Services & RE/MAX Colonial Pacific Realty
264 W 6th Street, North Vancouver, BC
Sold
$1,249,000

264 W 6th Street, North Vancouver, BC

2 Beds
2 Baths
1081 sqft
2014 built
MLS® R2875887 , Oakwyn Realty Ltd.
31 720 E 3rd Street, North Vancouver, BC
Sold
$1,548,000

31 720 E 3rd Street, North Vancouver, BC

4 Beds
4 Baths
1907 sqft
2020 built
MLS® R2932499 , Engel & Volkers Vancouver & Engel & Volkers Vancouver
42 433 Seymour River Place, North Vancouver, BC
Sold
$899,900

42 433 Seymour River Place, North Vancouver, BC

2 Beds
2 Baths
1003 sqft
2015 built
MLS® R3040846 , Framework Marketing Inc.
, Vancouver, BC
Sold
$799,000

, Vancouver, BC

2 Beds
2 Baths
898 sqft
2015 built
MLS® R3052299 , Royal Pacific Realty (Kingsway) Ltd. & Keller Williams Ocean Realty VanCentral
21 237 Ridgeway Avenue, North Vancouver, BC
Sold
$1,249,000

21 237 Ridgeway Avenue, North Vancouver, BC

3 Beds
2 Baths
1220 sqft
2023 built
MLS® R3045262 , Macdonald Realty & Macdonald Realty
35 720 E 3rd Street, North Vancouver, BC
Sold
$1,599,000

35 720 E 3rd Street, North Vancouver, BC

3 Beds
4 Baths
1885 sqft
2020 built
MLS® R3038817 , Royal LePage Sussex
12 6965 Hastings Street, Burnaby, BC
Sold
$469,900

12 6965 Hastings Street, Burnaby, BC

1 Beds
1 Baths
636 sqft
2010 built
MLS® R3063269 , Sutton Centre Realty
TH1 128 E 8th Street, North Vancouver, BC
Sold
$1,198,000

TH1 128 E 8th Street, North Vancouver, BC

2 Beds
3 Baths
1224 sqft
2021 built
MLS® R3039183 , Royal LePage Sussex
106 2322 Emery Court, North Vancouver, BC
Sold
$1,499,900

106 2322 Emery Court, North Vancouver, BC

3 Beds
3 Baths
1624 sqft
2025 built
MLS® R3040126 , Mosaic Avenue Realty Ltd.

Book a tour

Please complete the form. We will the arrangements and give you a call, typically within 1-2 hours. Or Call Us 778-918-5990
Thank you Your message has been sent
Go See This Home Now